Об'єкт торгівлі вул. Оболонська 9, 120м2

  • Подільський район вул. Оболонська 9
  • Код: SC-217-159
  • Добавлено: 28.10.2025
  • Додати в обране
Тип ринку
Вторинний ринок
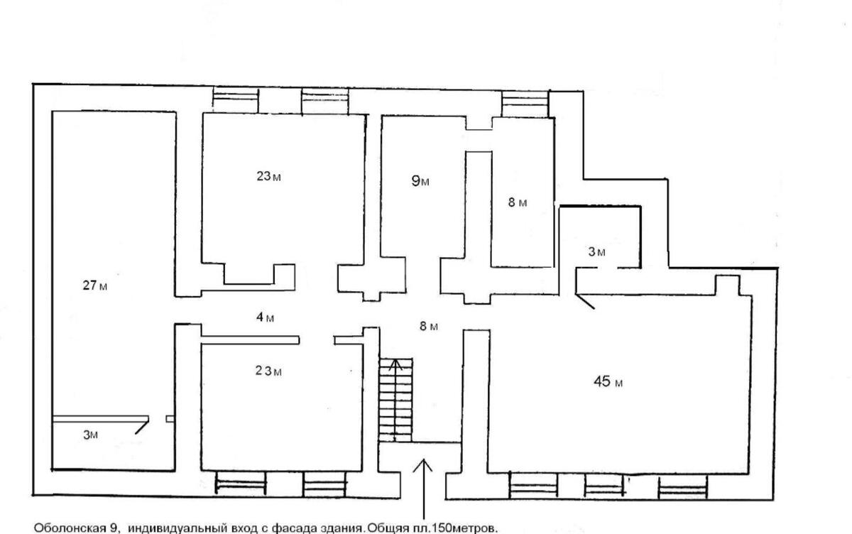
Вулиця
вул. Оболонська 9
Назначение
Торгове приміщення
Поверх
0 Поверх
Поверховість
3 поверховий будинок
Загальна площа
120 м2
Загальний стан
З ремонтом
Ціна:
6 764 958 грн.
160 000 USD
  • AXIS Real Estate
  • AXIS Real Estate
  • AXIS Real Estate
Опис об'єкту

Приміщення вільного призначення. У приміщенні зроблений повний ремонт, є санвузел, підведений інтернет. Офіс має свій окремий вхід з фасаду. Це ідеальний варіант для розміщення офісу, магазину, кліники, салону тощо. Будинок знаходиться на перехресті з вул. Константинівською.

Додаткова інформація

Схожі пропозиції