Trade object vul. Obolons'ka 9, 120m2

  • Podilskyi District vul. Obolons'ka 9
  • Code: SC-217-159
  • Added by: 28.10.2025
  • Add to favorites
Market type
Secondary market
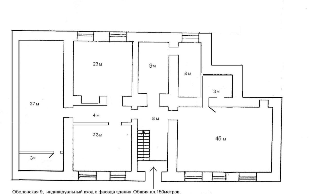
Street
vul. Obolons'ka 9
Purpose
Trade Premise
Floor
0 Floor
Number of storeys
3 storey house
Total area
120 м2
General state
With repair
Price:
6 764 958 UAH
160 000 USD
  • AXIS Real Estate
  • AXIS Real Estate
  • AXIS Real Estate
Description of the object

The premises are free for use. The room has been completely renovated, has a bathroom, and internet connection. The office has its own separate entrance from the facade. This is an ideal option for placing an office, shop, clinic, salon, etc. The house is located at the intersection with Konstantinovskaya Street.

Additional Information

Similar offers