Объект торговли ул. Оболонская 9, 120м2

  • Подольский район ул. Оболонская 9
  • Код: SC-217-159
  • Добавлено: 28.10.2025
  • Добавить в избранное
Тип рынка
Вторичный рынок
Улица
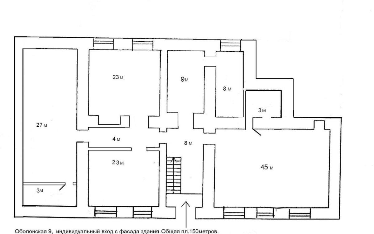
ул. Оболонская 9
Призначення
Торговое помещение
Этаж
0 Этаж
Этажность
3 этажный дом
Общая площадь
120 м2
Общее состояние
С ремонтом
Цена:
6 764 958 грн.
160 000 USD
  • AXIS Real Estate
  • AXIS Real Estate
  • AXIS Real Estate
Описание объекта

Помещение свободного назначения. В помещении сделан полный ремонт, есть санузел, подведен интернет. Офис имеет свой отдельный вход с фасада. Это идеальный вариант для размещения офиса, магазина, клиники, салона и тому подобное. Дом находится на перекрестке с ул. Константиновской.

Дополнительная информация

Похожие предложения