Оренда
 
              
                 
                Усі фото (10)
              
              
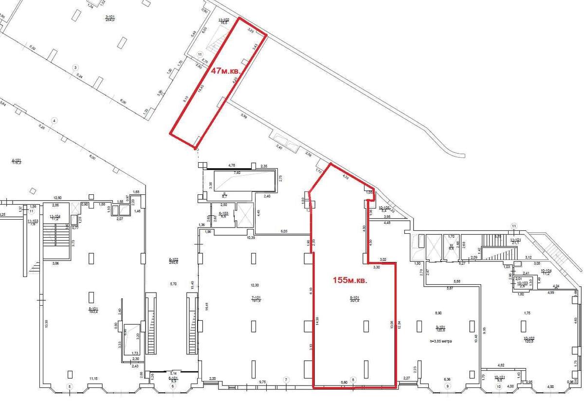
          Об'єкт торгівлі вул. Нижній Вал 3/7, 18885м2
- Додати в обране
- 
              Подiлитись посиланням
Тип ринку
                Вторинний ринок
              Вулиця
                
                  вул. Нижній Вал 3/7
              Назначение
                Торгове приміщення
              Поверх
                1 Поверх
              Поверховість
                8 поверховий будинок
                
              Загальна площа
                18885 м2
              Загальний стан
                Без ремонту
              Ціна:
              228 479 грн.
              5 425 USD
            Опис об'єкту
          Приміщення вільного призначення. Загальна площа будівлі - 18 885м2. Торгові приміщення 1 - 2 поверхи - 5 832 м2. Приміщення офісного центру В+ класу 3 - 8 поверхи - 10 702 м2. Паркінги (підземний, наземний і на даху 2го поверху) – 128 місць. Бомбосховище і резервне електроживлення. Технічні характеристики: електроживлення 3 категорії надійності – 2 окремі вводи по 1МВт., припливно-витяжна вентиляція, опалення і кондиціонування - фанкойли, міське водопостачання; системи димовидалення, пожежогасіння (сплінкер), оптоволоконний інтернет, блискавкозахист, охорона і відео нагляд.
Додаткова інформація
           
                   
                   
                   
                   
                   
                   
                   
                   
                   
                           
                          