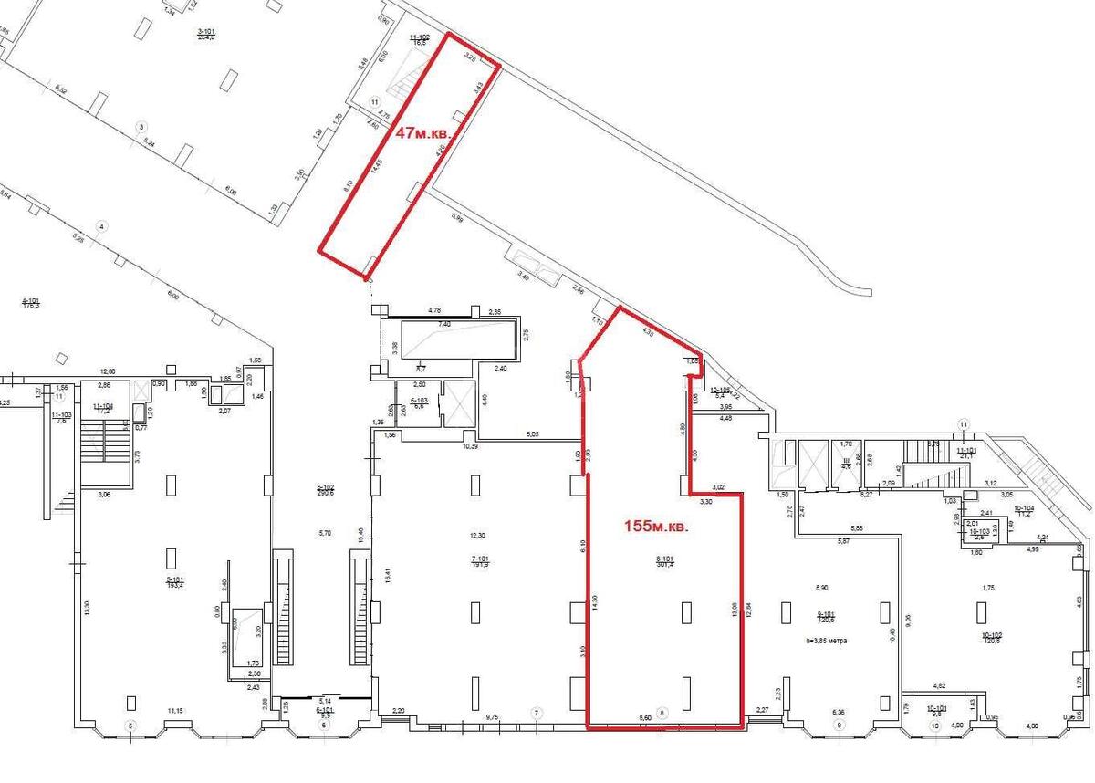
Trade object vul. Nyzhnij Val 3/7, 18885m2

  • Podilskyi District vul. Nyzhnij Val 3/7
  • Code: RC-217-292
  • Added by: 30.10.2025
  • Add to favorites
Market type
Secondary market
Street
vul. Nyzhnij Val 3/7
Purpose
Trade Premise
Floor
1 Floor
Number of storeys
8 storey house
Total area
18885 м2
General state
Without repair
Price:
229 373 UAH
5 425 USD
  • AXIS Real Estate
  • AXIS Real Estate
  • AXIS Real Estate
Description of the object

The premises are free for use. The total area of the building is 18,885 m2. Retail premises on floors 1 - 2 - 5 832 m2. Premises of the B+ class office center 3 - 8 floors - 10 702 m2. Parking lots (underground, ground and on the roof of the 2nd floor) - 128 spaces. Bomb shelter and backup power supply. Technical specifications: power supply of 3 reliability categories - 2 separate inputs of 1 MW each, supply and exhaust ventilation, heating and air conditioning - fan coil units, municipal water supply; smoke removal systems, fire extinguishing systems (sprinklers), fiber optic Internet, lightning protection, security and video surveillance.

Additional Information

Similar offers