Объект торговли ул. Нижний Вал 3/7, 18885м2

  • Подольский район ул. Нижний Вал 3/7
  • Код: RC-217-292
  • Добавлено: 30.10.2025
  • Добавить в избранное
Тип рынка
Вторичный рынок
Улица
ул. Нижний Вал 3/7
Призначення
Торговое помещение
Этаж
1 Этаж
Этажность
8 этажный дом
Общая площадь
18885 м2
Общее состояние
Без ремонта
Цена:
229 373 грн.
5 425 USD
  • AXIS Real Estate
  • AXIS Real Estate
  • AXIS Real Estate
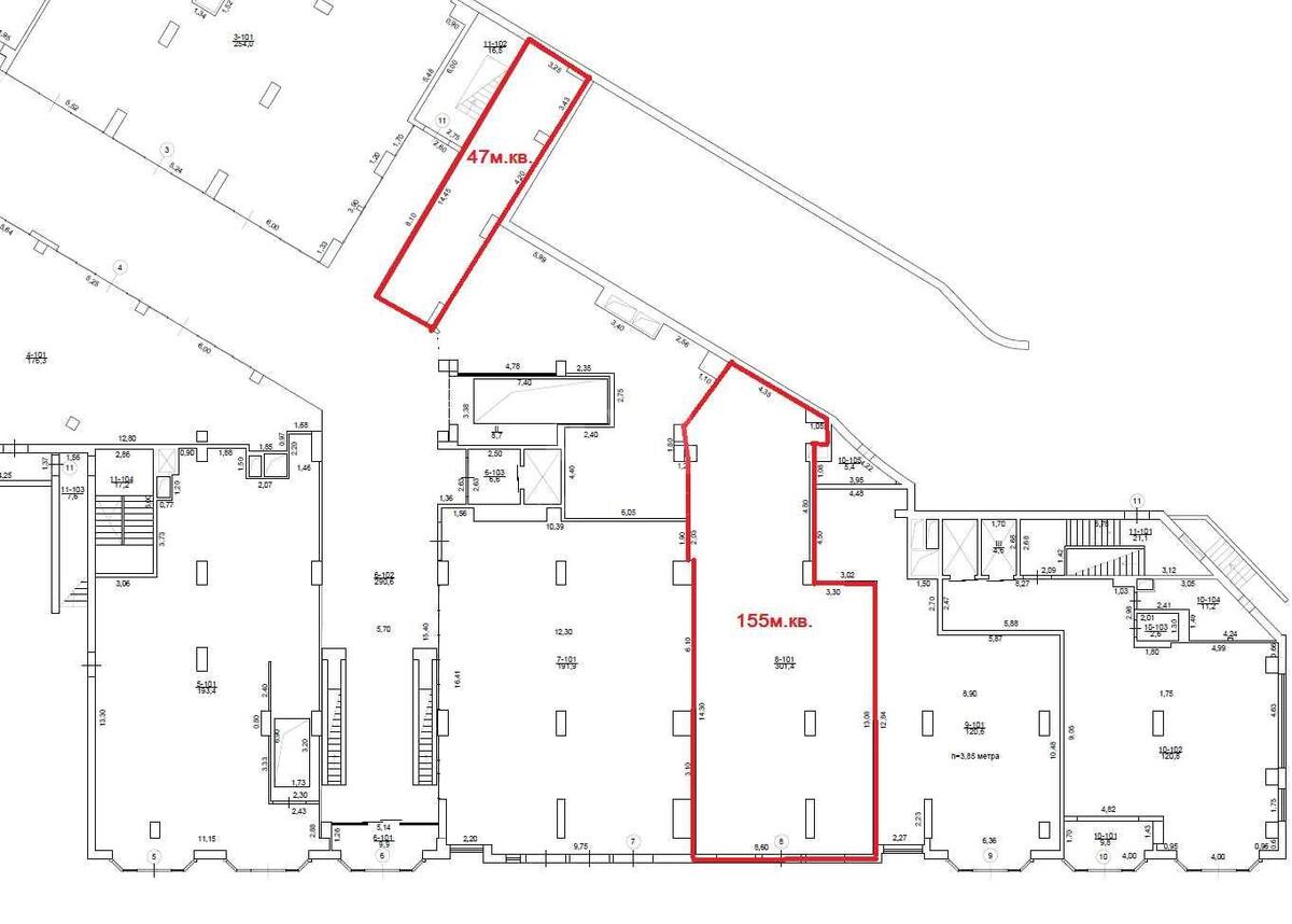
Описание объекта

Помещение свободного назначения. Общая площадь здания - 18 885м2. Торговые помещения 1 - 2 этажи - 5 832 м2. Помещения офисного центра В+ класса 3 - 8 этажи - 10 702 м2. Паркинги (подземный, наземный и на крыше 2го этажа) - 128 мест. Бомбоубежище и резервное электропитание. Технические характеристики: электропитание 3 категории надежности - 2 отдельных ввода по 1МВт, приточно-вытяжная вентиляция, отопление и кондиционирование - фанкойлы, городское водоснабжение; системы дымоудаления, пожаротушения (сплинкер), оптоволоконный интернет, молниезащита, охрана и видео наблюдение.

Дополнительная информация

Похожие предложения