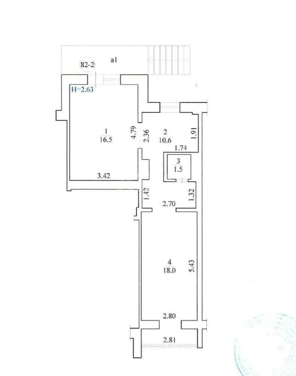
Об'єкт торгівлі вул. Милославська 39/48, 64м2

  • Деснянський район вул. Милославська 39/48
  • Код: SC-224-026
  • Добавлено: 22.04.2026
  • Додати в обране
Тип ринку
Вторинний ринок
Вулиця
вул. Милославська 39/48
Назначение
Торгове приміщення
Поверх
1 Поверх
Поверховість
9 поверховий будинок
Загальна площа
64 м2
Загальний стан
З ремонтом
Ціна:
6 619 231 грн.
150 000 USD
Опис об'єкту

Приміщення вільного призначення. Помешкання розташоване на першому поверсі житлового будинку. Пожвавлений трафік як пішохідний, так і автомобільний, зручне паркування. Приміщення перед зупинкою громадського транспорту. Дуже гарний огляд з усіх напрямків. Поруч ТЦ 'Милославський', ТЦ 'Корал', Більярдний клуб. Об'єкт лише після ремонту, зроблено високоякісний ремонт фасаду та всередині приміщення з дорогих та якісних матеріалів.

Схожі пропозиції