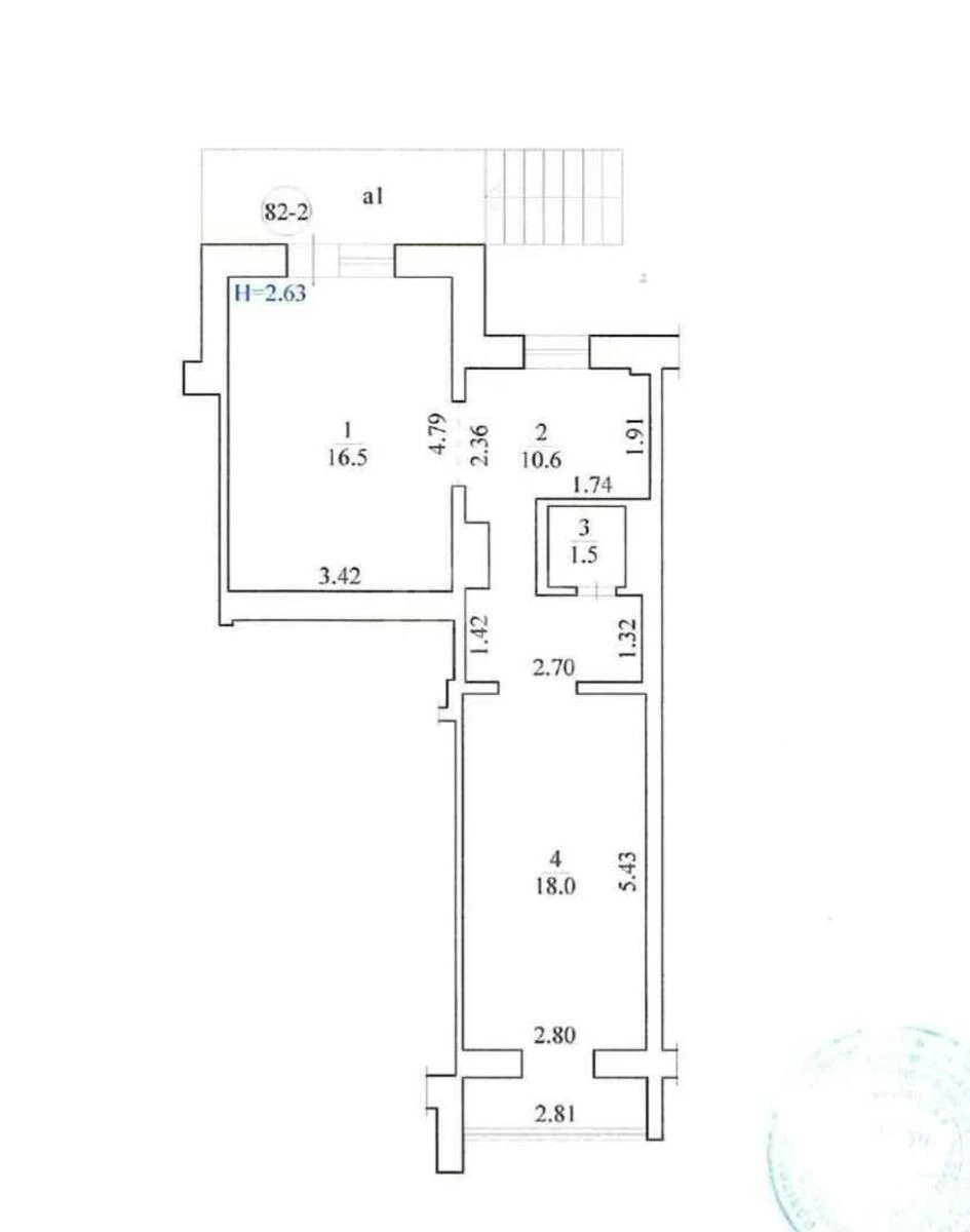
Trade object vul. Myloslavs'ka 39/48, 64m2

  • Desnyanskyi District vul. Myloslavs'ka 39/48
  • Code: SC-224-026
  • Added by: 22.04.2026
  • Add to favorites
Market type
Secondary market
Street
vul. Myloslavs'ka 39/48
Purpose
Trade Premise
Floor
1 Floor
Number of storeys
9 storey house
Total area
64 м2
General state
With repair
Price:
6 619 231 UAH
150 000 USD
Description of the object

Multi-purpose premises. The property is situated on the ground floor of a residential building. High footfall and traffic, with convenient parking. The premises are located opposite a public transport stop. Excellent visibility from all directions. Nearby are the “Myloslavskyi” shopping centre, the “Koral” shopping centre and a billiards club. The property has recently been refurbished, with high-quality renovation work carried out on the façade and interior using premium materials.

Similar offers