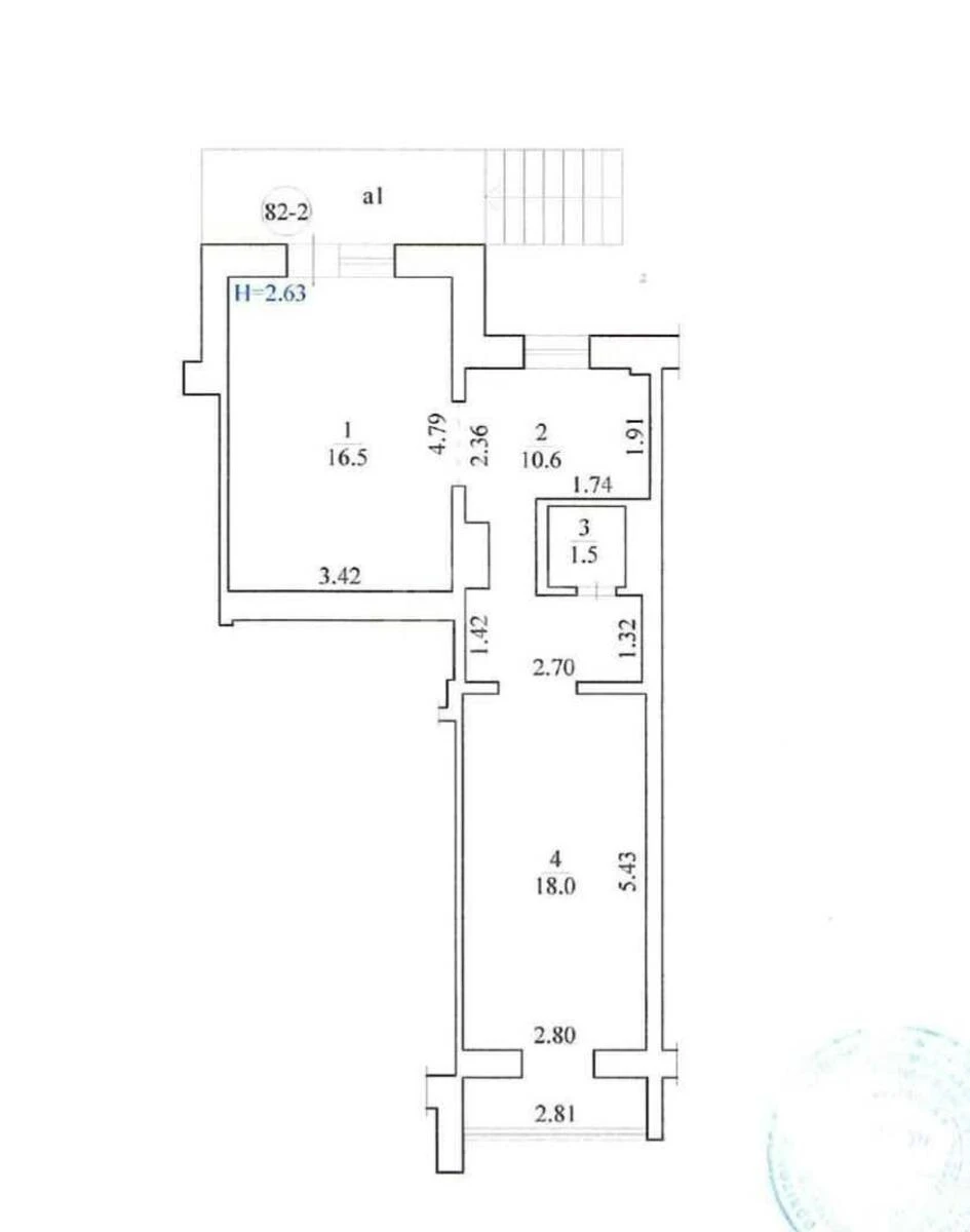
Объект торговли ул. Милославская 39/48, 64м2

  • Деснянский район ул. Милославская 39/48
  • Код: SC-224-026
  • Добавлено: 22.04.2026
  • Добавить в избранное
Тип рынка
Вторичный рынок
Улица
ул. Милославская 39/48
Призначення
Торговое помещение
Этаж
1 Этаж
Этажность
9 этажный дом
Общая площадь
64 м2
Общее состояние
С ремонтом
Цена:
6 619 231 грн.
150 000 USD
Описание объекта

Помещение свободного назначения. Помещение расположено на первом этаже жилого дома. Интенсивный пешеходный и автомобильный трафик, удобная парковка. Помещение находится напротив остановки общественного транспорта. Отличная обзорность со всех сторон. Рядом ТЦ «Милославский», ТЦ «Корал», бильярдный клуб. Объект только что отремонтирован, выполнен высококачественный ремонт фасада и внутри помещения из дорогих и качественных материалов.

Похожие предложения