Об'єкт торгівлі вул. Мукачівська 4/7, 17м2

  • Оболонський район вул. Мукачівська 4/7
  • Код: SC-218-957
  • Добавлено: 31.01.2026
  • Додати в обране
Тип ринку
Вторинний ринок
Вулиця
вул. Мукачівська 4/7
Назначение
Торгове приміщення
Поверх
1 Поверх
Поверховість
5 поверховий будинок
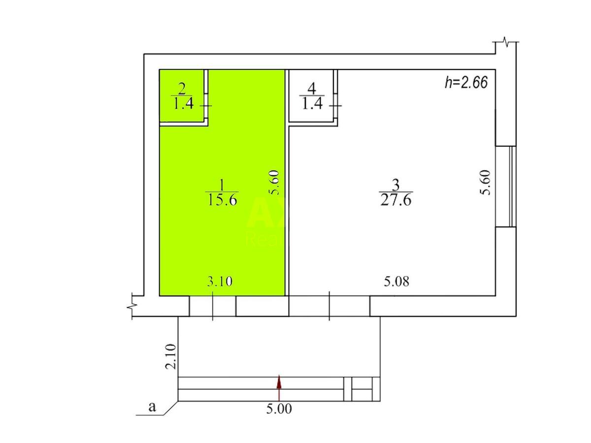
Загальна площа
17 м2
Загальний стан
Без ремонту
Ціна:
2 783 413 грн.
65 000 USD
Опис об'єкту

Приміщення вільного призначення. Приміщення має фасадний вхід і великі вітрини, що забезпечують хорошу видимість та створюють привабливу презентацію для бізнесу. Перед входом облаштована нова бруківка та охайна територія, що дозволяє комфортно встановити зовнішню рекламу чи літню зону, якщо це потрібно концепцією. Планування приміщення раціональне та дозволяє легко адаптувати простір під магазин, салон краси, офіс, сервісний центр, кав’ярню на виніс або пункт видачі замовлень. Усередині — приміщення після будівельних робіт, готове під ремонт та індивідуальне облаштування. Вхід зручний, простір правильної форми, можливий комфортний під’їзд автомобілів і паркування поруч.

Схожі пропозиції