Объект торговли ул. Мукачевская 4/7, 17м2

  • Оболонский район ул. Мукачевская 4/7
  • Код: SC-218-957
  • Добавлено: 31.01.2026
  • Добавить в избранное
Тип рынка
Вторичный рынок
Улица
ул. Мукачевская 4/7
Призначення
Торговое помещение
Этаж
1 Этаж
Этажность
5 этажный дом
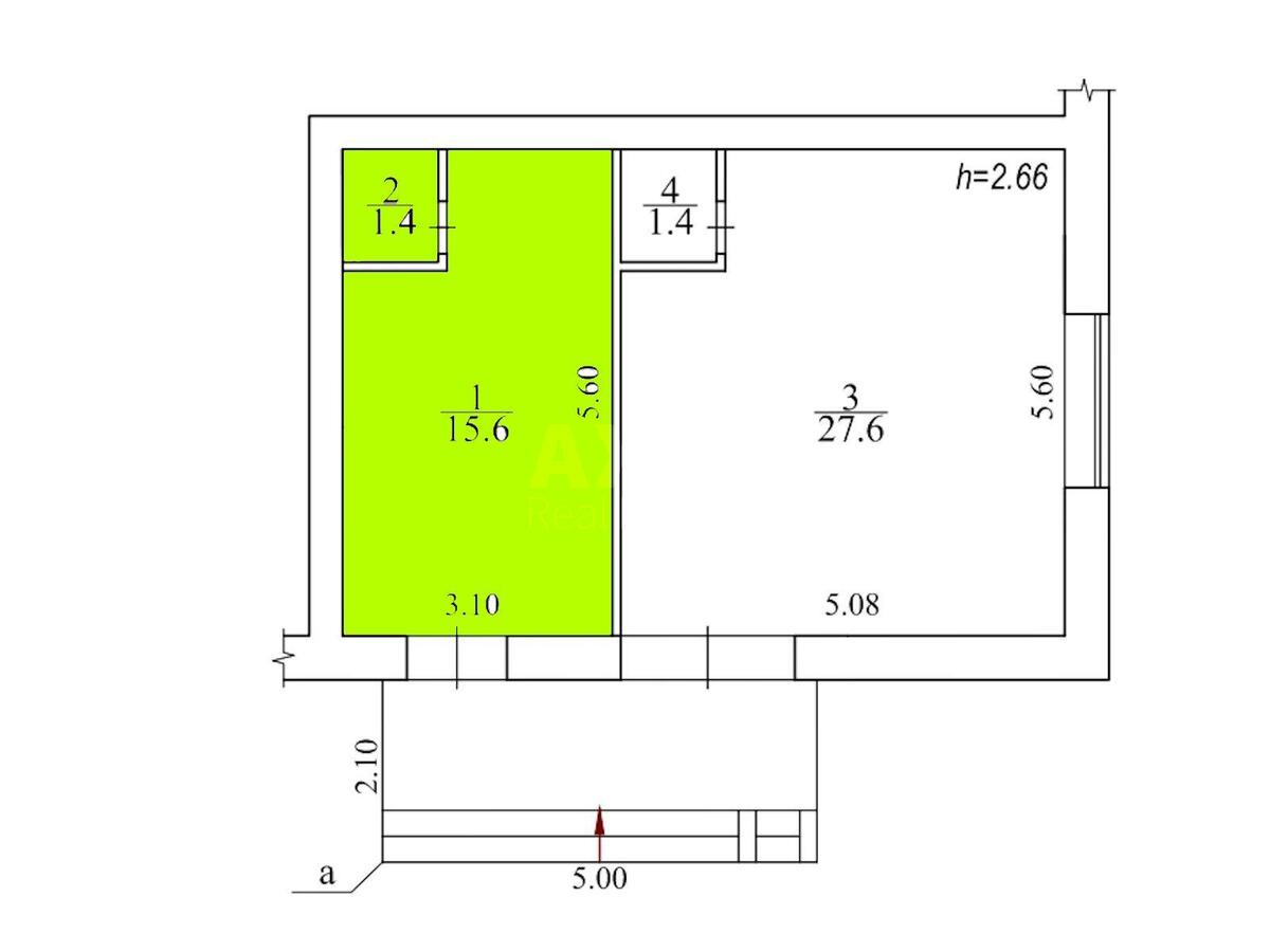
Общая площадь
17 м2
Общее состояние
Без ремонта
Цена:
2 783 413 грн.
65 000 USD
Описание объекта

Помещение свободного назначения. Помещение имеет фасадный вход и большие витрины, обеспечивающие хорошую видимость и создают привлекательную презентацию для бизнеса. Перед входом обустроена новая брусчатка и опрятная территория, что позволяет комфортно установить наружную рекламу или летнюю зону, если это требуется концепцией. Планировка помещения рациональное и позволяет легко адаптировать пространство под магазин, салон красоты, офис, сервисный центр, кофейню на вынос или пункт выдачи заказов. Внутри - помещение после строительных работ, готово под ремонт и индивидуальное обустройство. Вход удобный, пространство правильной формы, возможен комфортный подъезд автомобилей и парковка рядом.

Похожие предложения