Trade object vul. Mukachivs'ka 4/7, 17m2

  • Obolonskyi District vul. Mukachivs'ka 4/7
  • Code: SC-218-957
  • Added by: 31.01.2026
  • Add to favorites
Market type
Secondary market
Street
vul. Mukachivs'ka 4/7
Purpose
Trade Premise
Floor
1 Floor
Number of storeys
5 storey house
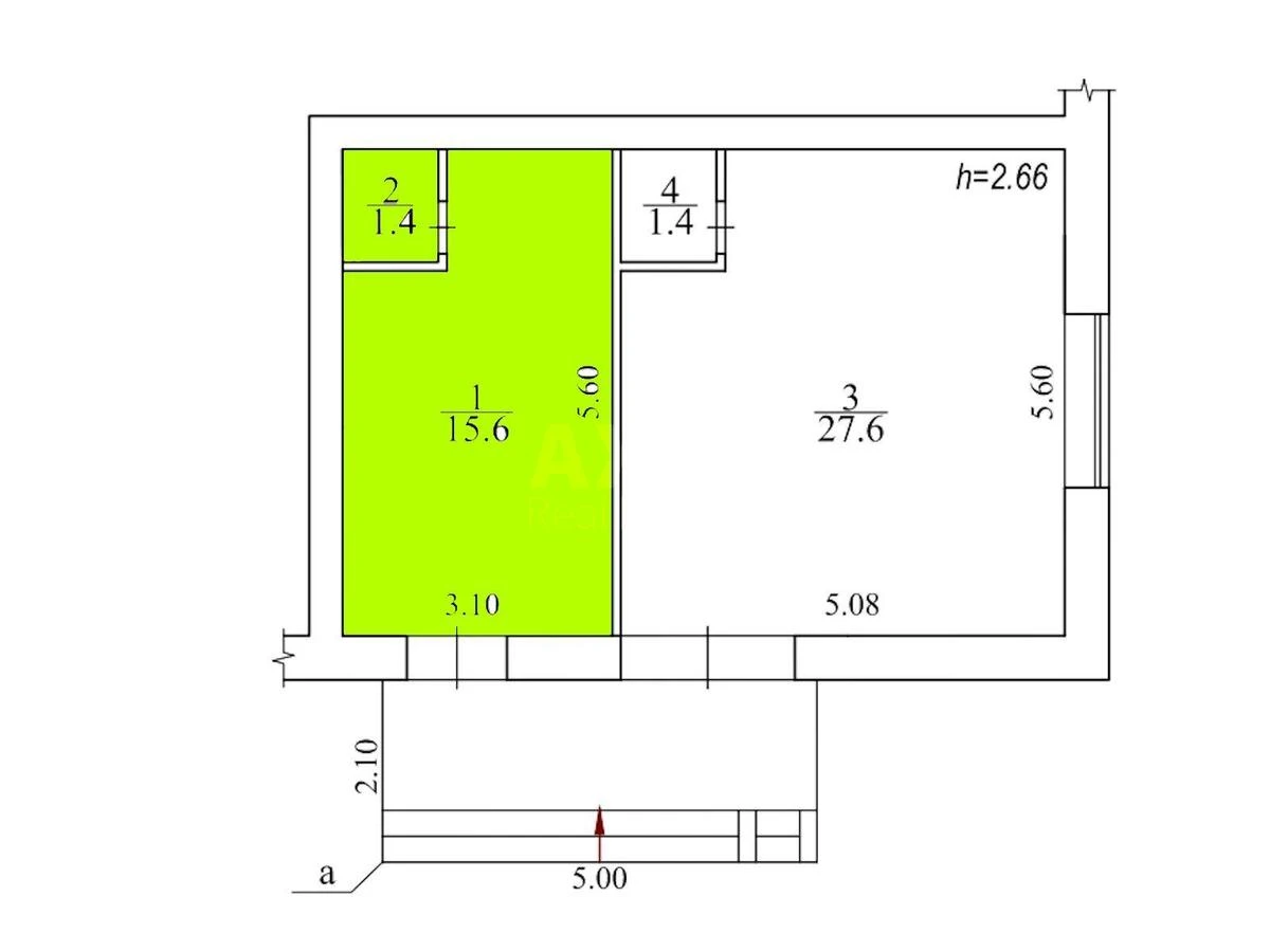
Total area
17 м2
General state
Without repair
Price:
2 783 413 UAH
65 000 USD
Description of the object

The premises are free for use. The premises have a front entrance and large shop windows that provide good visibility and create an attractive presentation for the business. In front of the entrance, there is a new paving stone and a tidy area, which allows you to comfortably install outdoor advertising or a summer area, if required by the concept. The layout of the premises is rational and allows you to easily adapt the space for a store, beauty salon, office, service center, takeaway coffee shop or ordering point. Inside, the premises are finished after construction works, ready for renovation and individual arrangement. The entrance is convenient, the space is of the right shape, and there is a comfortable access for cars and parking nearby.

Similar offers