Об'єкт торгівлі пр-т Оболонський 12, 53м2

  • Оболонський район пр-т Оболонський 12
  • Код: RC-222-741
  • Добавлено: 19.03.2026
  • Додати в обране
Тип ринку
Вторинний ринок
Вулиця
пр-т Оболонський 12
Назначение
Торгове приміщення
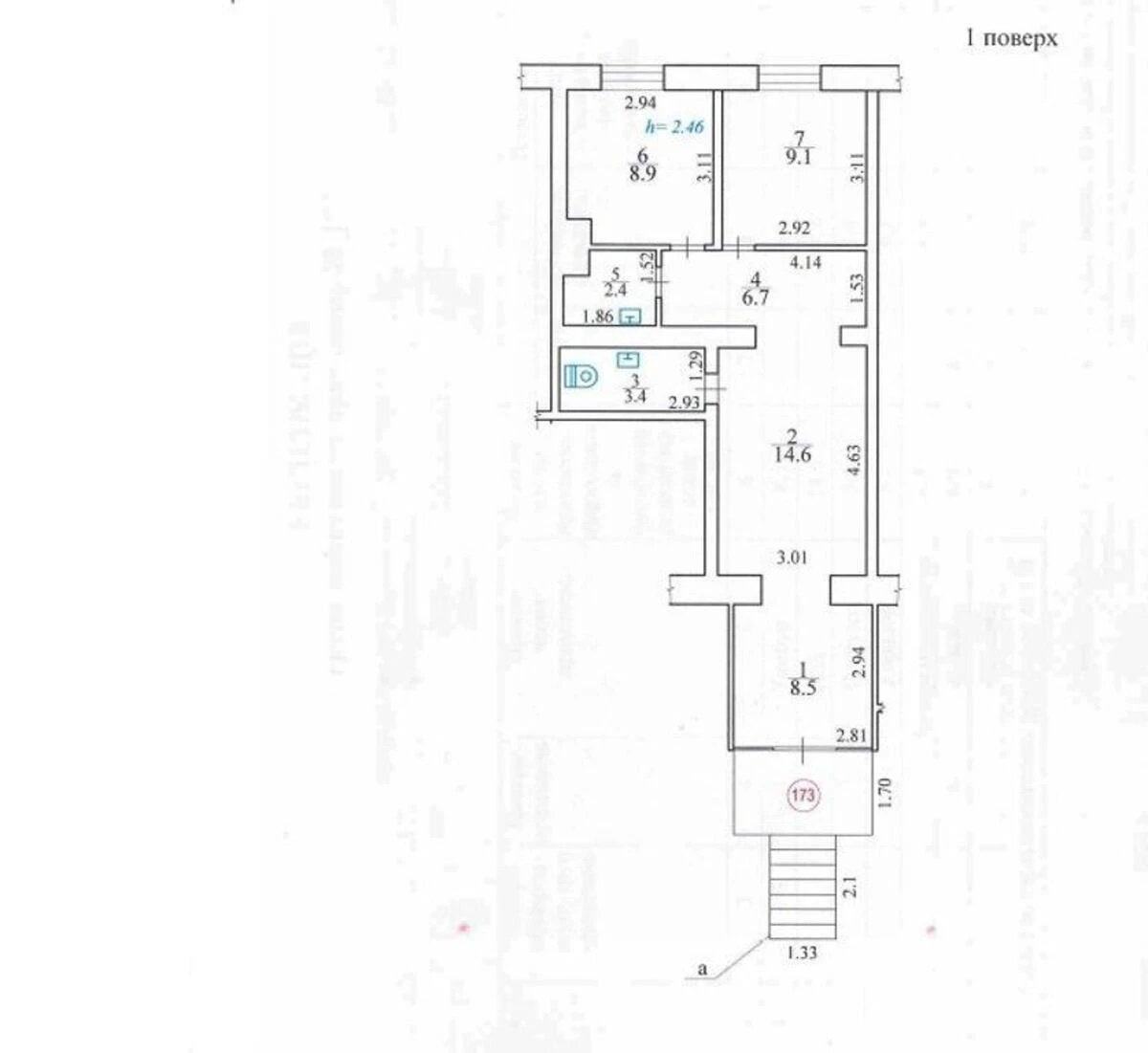
Поверх
1 Поверх
Поверховість
9 поверховий будинок
Загальна площа
53 м2
Загальний стан
З ремонтом
Ціна:
87 953 грн.
2 000 USD
Опис об'єкту

Приміщення вільного призначення. Світле та просторе приміщення з окремим фасадним входом, який добре проглядається з дороги. Розташоване на проспекті з дуже активним пішохідним трафіком, оскільки поряд знаходяться. станція метро «Оболонь» та ТРЦ «Dream Town». Приміщення розташоване за адресою м. Київ, проспект Оболонський, будинок 12. Загальна площа 53, 6 м ². Знаходиться на 1-му поверсі 9-поверхового житлового будинку.

Схожі пропозиції