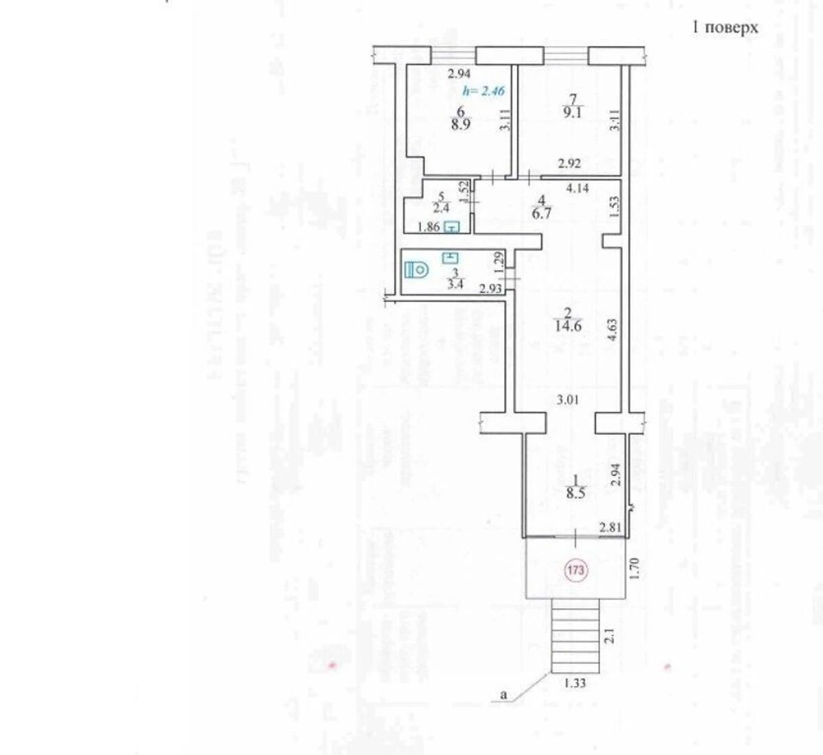
Объект торговли пр-т Оболонский 12, 53м2

  • Оболонский район пр-т Оболонский 12
  • Код: RC-222-741
  • Добавлено: 19.03.2026
  • Добавить в избранное
Тип рынка
Вторичный рынок
Улица
пр-т Оболонский 12
Призначення
Торговое помещение
Этаж
1 Этаж
Этажность
9 этажный дом
Общая площадь
53 м2
Общее состояние
С ремонтом
Цена:
87 953 грн.
2 000 USD
Описание объекта

Помещение свободного назначения. Светлое и просторное помещение с отдельным фасадным входом, хорошо просматриваемым с дороги. Расположено на проспекте с очень интенсивным пешеходным трафиком, так как рядом находятся станция метро «Оболонь» и ТРЦ «Dream Town». Помещение расположено по адресу г. Киев, проспект Оболонский, дом 12. Общая площадь 53,6 м². Находится на 1-м этаже 9-этажного жилого дома.

Похожие предложения