Trade object pr-t Obolons'kyj 12, 53m2

  • Obolonskyi District pr-t Obolons'kyj 12
  • Code: RC-222-741
  • Added by: 18.03.2026
  • Add to favorites
Market type
Secondary market
Street
pr-t Obolons'kyj 12
Purpose
Trade Premise
Floor
1 Floor
Number of storeys
9 storey house
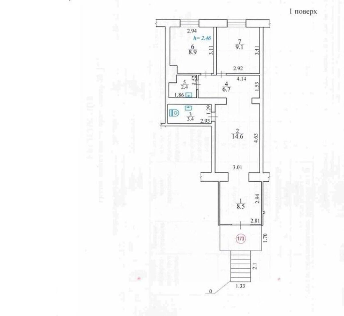
Total area
53 м2
General state
With repair
Price:
88 153 UAH
2 000 USD
Description of the object

Multi-purpose premises. A bright and spacious unit with a separate front entrance that is clearly visible from the road. Located on an avenue with very high footfall, as it is situated next to the ‘Obolon’ metro station and the ‘Dream Town’ shopping centre. The premises are located at 12 Obolonskyi Avenue, Kyiv. Total area: 53.6 m². Located on the ground floor of a 9-storey residential building.

Similar offers