Об'єкт сервісу вул. Олександра Олеся 5, 950м2

  • Подільський район вул. Олександра Олеся 5
  • Код: RC-212-921
  • Добавлено: 24.02.2026
  • Додати в обране
Тип ринку
Вторинний ринок
Вулиця
вул. Олександра Олеся 5
Назначение
Сервісний об'єкт
Поверх
1 Поверх
Поверховість
25 поверховий будинок
Загальна площа
950 м2
Загальний стан
Без ремонту
Ціна:
798 000 грн.
18 438 USD
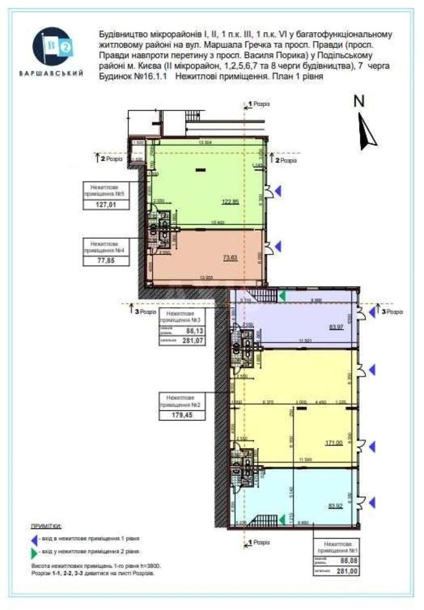
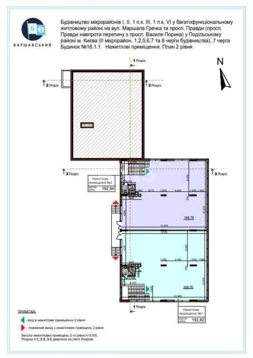
Опис об'єкту

ЖК Варшавський 2, приміщення вільного призначення. Загальна площа приміщення 947м.кв. Можливо поділ. 1-поверх 560м.кв. 2-поверх 386м.кв. Висота 3.5м. Багато місця під літню терасу. Є можливість експлуатувати дах. Можна орендувати різну квадратуру. Будівля має 6 вхідних груп. Усі міські комунікації. Розглядається під, клініку, магазин, офіс, ресторан, представництво тощо. Об'єкт розташований на головній дорозі комплексу.

Схожі пропозиції