Объект сервиса ул. Александра Олеся 5, 950м2

  • Подольский район ул. Александра Олеся 5
  • Код: RC-212-921
  • Добавлено: 25.02.2026
  • Добавить в избранное
Тип рынка
Вторичный рынок
Улица
ул. Александра Олеся 5
Призначення
Сервисный объект
Этаж
1 Этаж
Этажность
25 этажный дом
Общая площадь
950 м2
Общее состояние
Без ремонта
Цена:
798 000 грн.
18 425 USD
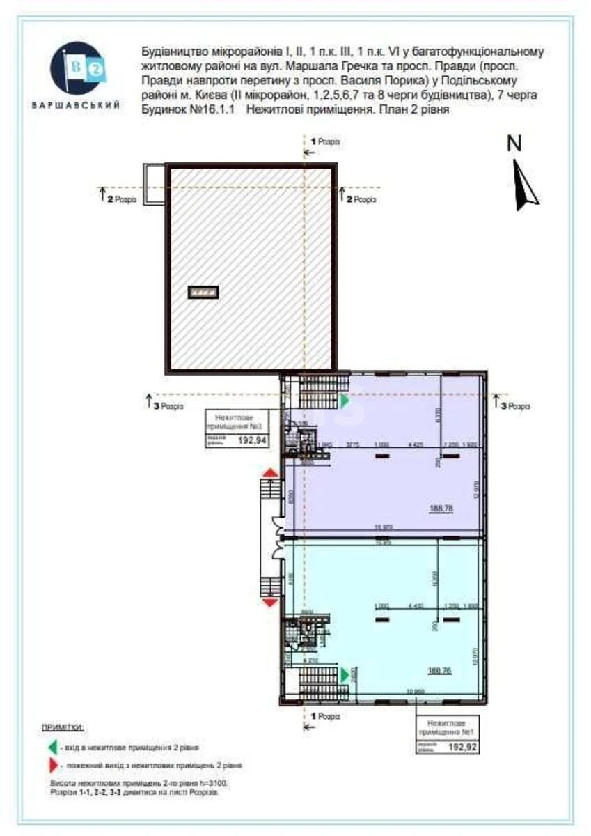
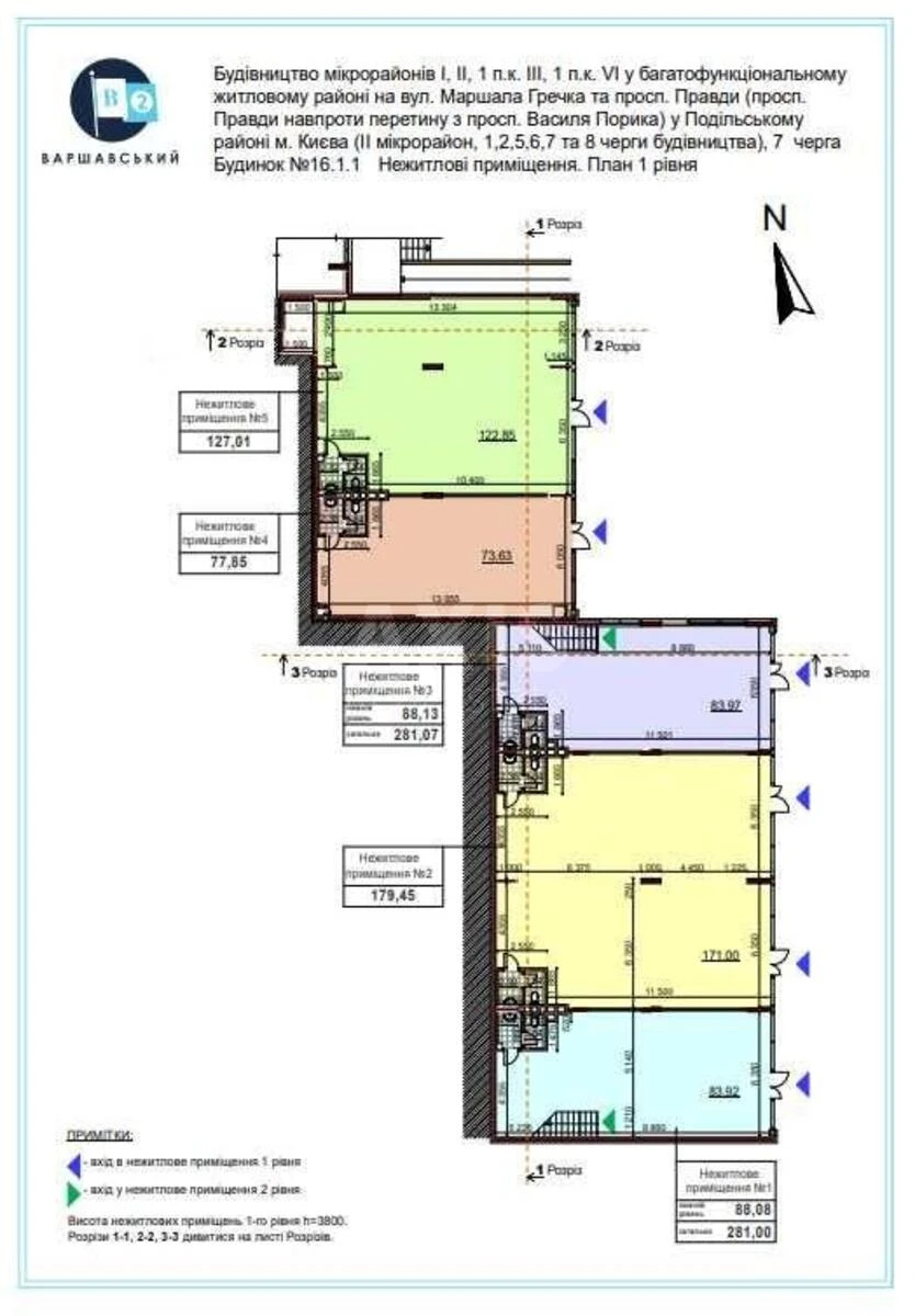
Описание объекта

ЖК Варшавский 2, помещение свободного назначения. Общая площадь помещения 947м.кв. Возможно разделение. 1-этаж 560м.кв. 2-этаж 386м.кв. Высота 3.5м. Много места под летнюю террасу. Есть возможность эксплуатировать крышу. Можно арендовать разную квадратуру. Здание имеет 6 входных групп. Все городские коммуникации. Рассматривается под, клинику, магазин, офис, ресторан, представительство и тому подобное. Объект расположен на главной дороге комплекса.

Похожие предложения