Service object vul. Oleksandra Olesja 5, 950m2

  • Podilskyi District vul. Oleksandra Olesja 5
  • Code: RC-212-921
  • Added by: 25.02.2026
  • Add to favorites
Market type
Secondary market
Street
vul. Oleksandra Olesja 5
Purpose
Service Object
Floor
1 Floor
Number of storeys
25 storey house
Total area
950 м2
General state
Without repair
Price:
798 000 UAH
18 425 USD
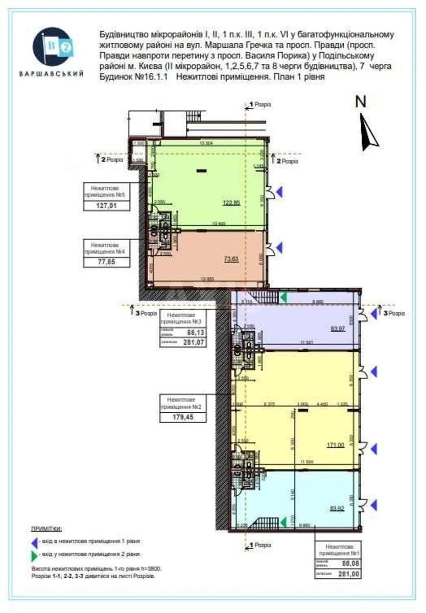
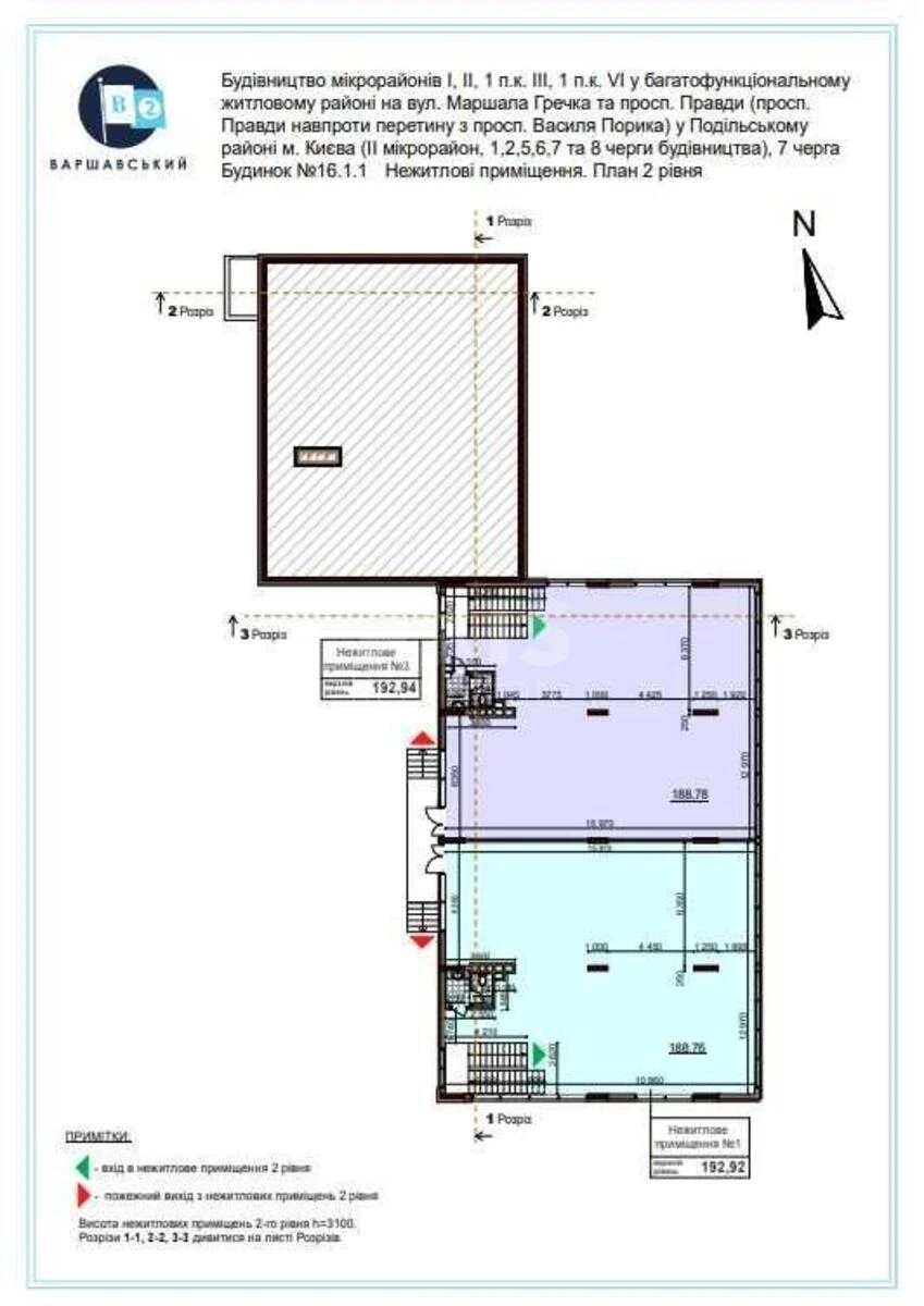
Description of the object

Varshavsky 2 residential complex, free premises. The total area of the premises is 947 sq.m. Possibility of division. 1st floor 560 sq.m. 2nd floor 386 sq.m. Height 3.5m. Plenty of space for a summer terrace. It is possible to operate the roof. You can rent a different square. The building has 6 entrance groups. All city communications. Considered for a clinic, shop, office, restaurant, representative office, etc. The object is located on the main road of the complex.

Similar offers