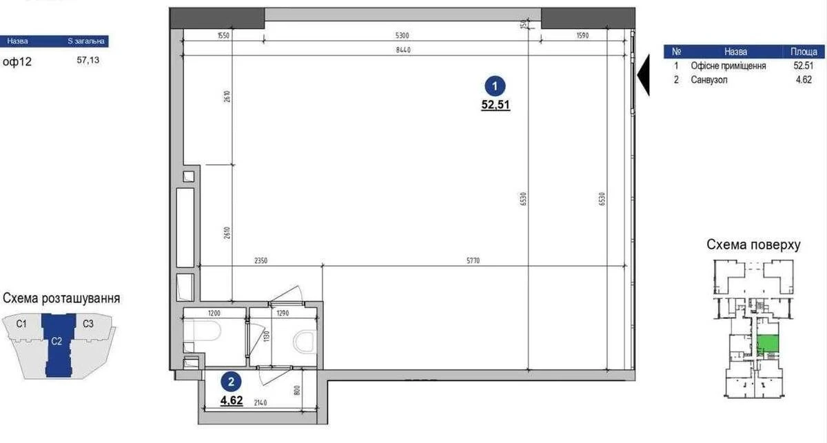
Об'єкт сервісу вул. Євгена Коновальця 30, 57м2

  • Печерський район вул. Євгена Коновальця 30
  • Код: SC-216-917
  • Добавлено: 23.10.2025
  • Додати в обране
Тип ринку
Вторинний ринок
Вулиця
вул. Євгена Коновальця 30
Назначение
Сервісний об'єкт
Поверх
1 Поверх
Поверховість
25 поверховий будинок
Загальна площа
57 м2
Загальний стан
Без ремонту
Ціна:
8 417 987 грн.
200 000 USD
  • AXIS Real Estate
  • AXIS Real Estate
  • AXIS Real Estate
Опис об'єкту

ЖК Maxima Residence, приміщення вільного призначення. Введення в експлуатацію — 2 квартал 2026 року. Розтермінування від 30% першого внеску. Девелопер із надійною історією з 2003 року. Інфраструктура: центр міста, аптека, житловий масив, метро, офіси, бізнес центр, відділення пошти, ресторан, кафе, бар, навчальні заклади, супермаркет, ТРЦ, транспортна розв'язка.

Додаткова інформація

Схожі пропозиції