Объект сервиса ул. Евгения Коновальца 30, 57м2

  • Печерский район ул. Евгения Коновальца 30
  • Код: SC-216-917
  • Добавлено: 23.10.2025
  • Добавить в избранное
Тип рынка
Вторичный рынок
Улица
ул. Евгения Коновальца 30
Призначення
Сервисный объект
Этаж
1 Этаж
Этажность
25 этажный дом
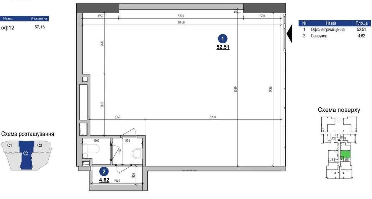
Общая площадь
57 м2
Общее состояние
Без ремонта
Цена:
8 415 761 грн.
200 000 USD
  • AXIS Real Estate
  • AXIS Real Estate
  • AXIS Real Estate
Описание объекта

ЖК Maxima Residence, помещения свободного назначения. Ввод в эксплуатацию - 2 квартал 2026 года. Рассрочка от 30% первого взноса. Девелопер с надежной историей с 2003 года. Инфраструктура: центр города, аптека, жилой массив, метро, офисы, бизнес центр, отделение почты, ресторан, кафе, бар, учебные заведения, супермаркет, ТРЦ, транспортная развязка.

Дополнительная информация

Похожие предложения