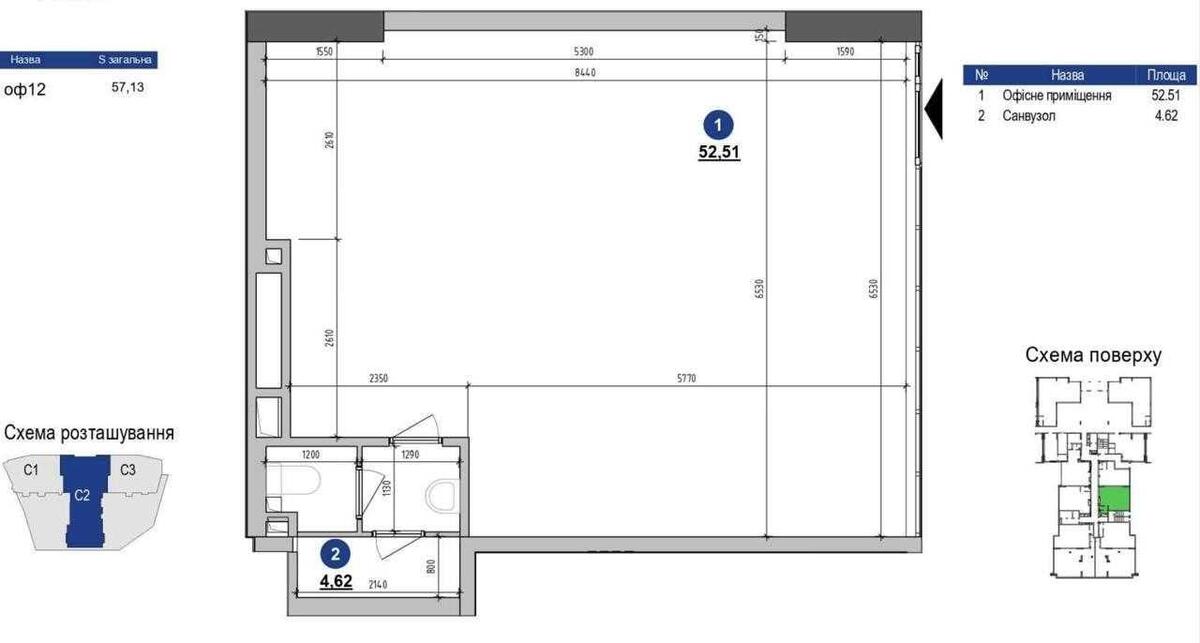
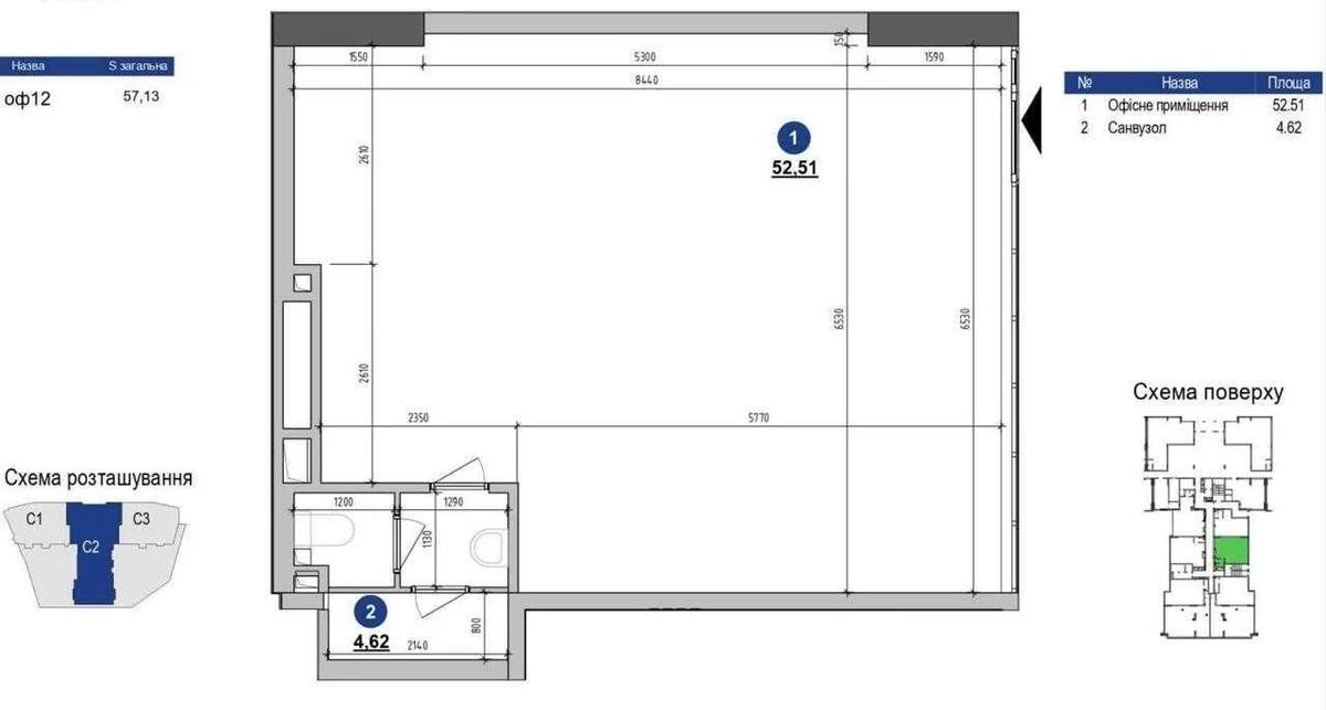
Service object vul. Jevgena Konoval'cja 30, 57m2

  • Pecherskyi District vul. Jevgena Konoval'cja 30
  • Code: SC-216-917
  • Added by: 23.10.2025
  • Add to favorites
Market type
Secondary market
Street
vul. Jevgena Konoval'cja 30
Purpose
Service Object
Floor
1 Floor
Number of storeys
25 storey house
Total area
57 м2
General state
Without repair
Price:
8 415 761 UAH
200 000 USD
  • AXIS Real Estate
  • AXIS Real Estate
  • AXIS Real Estate
Description of the object

Maxima Residence, free-use premises. Commissioning - 2nd quarter of 2026. Installment plan from 30% of the down payment. A developer with a reliable history since 2003. Infrastructure: city center, pharmacy, residential area, subway, offices, business center, post office, restaurant, cafe, bar, educational institutions, supermarket, shopping and entertainment center, transport interchange.

Additional Information

Similar offers