Об'єкт сервісу пров. Мічуріна 7, 543м2

  • Печерський район пров. Болсуновський 7
  • Код: SC-209-049
  • Добавлено: 25.02.2026
  • Додати в обране
Тип ринку
Вторинний ринок
Вулиця
пров. Болсуновський 7
Назначение
Сервісний об'єкт
Поверх
1 Поверх
Поверховість
4 поверховий будинок
Загальна площа
543 м2
Загальний стан
Без ремонту
Ціна:
55 869 617 грн.
1 290 000 USD
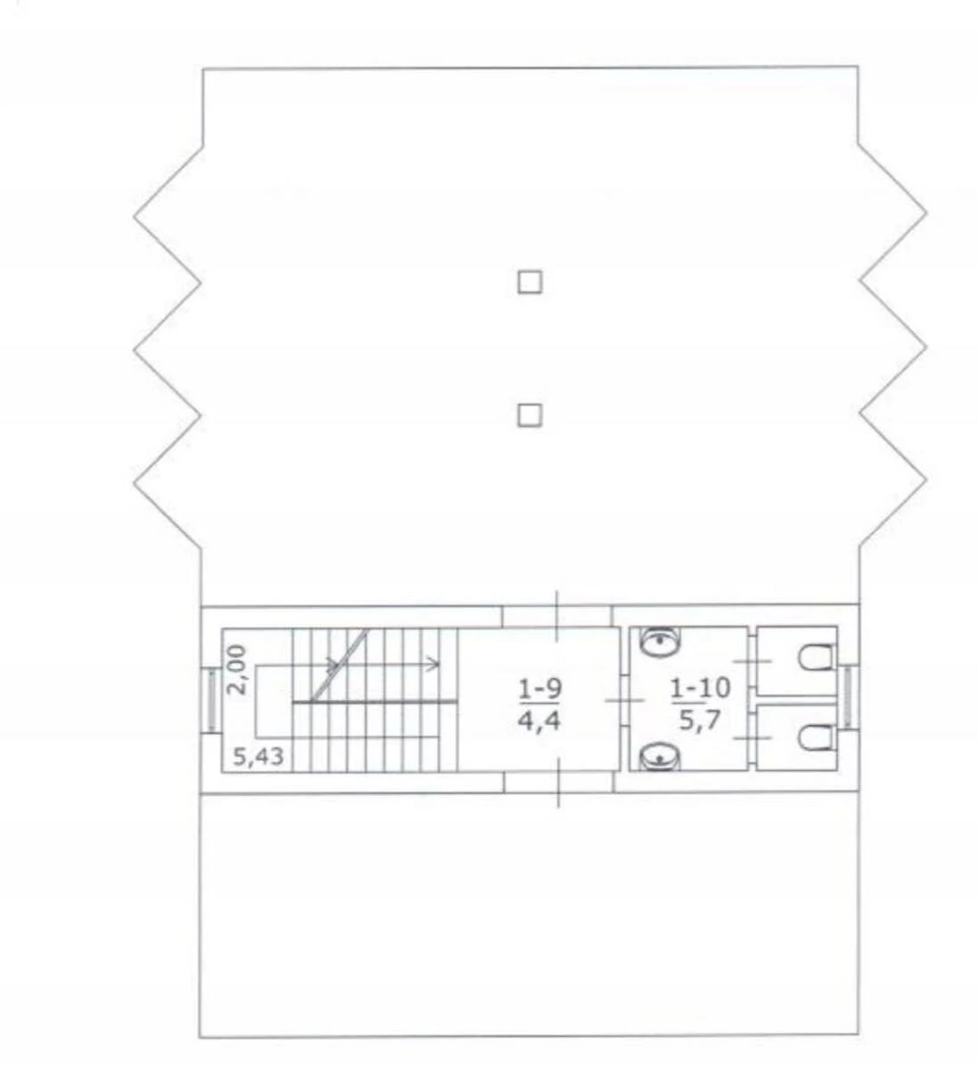
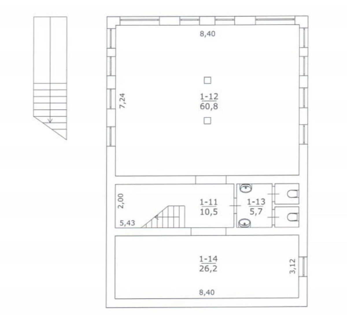
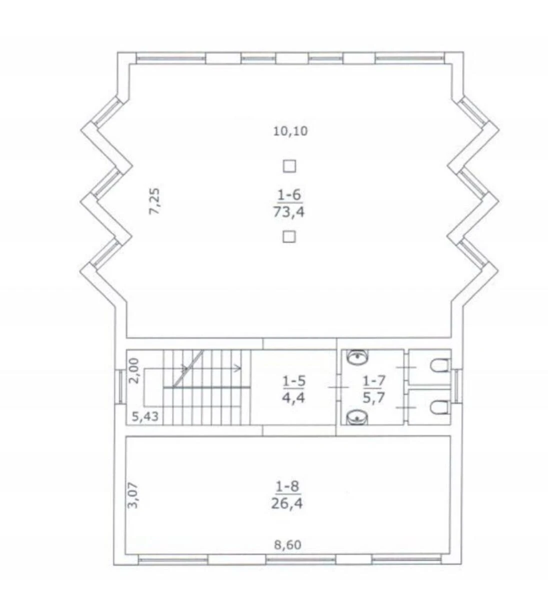
Опис об'єкту

Приміщення вільного призначення. Фактична площа будівлі 543 м2. Висота стелі — 320см. Панорамні вікна Rehau. Власна парковка на 6 авто з можливістю розширення. Цокольний поверх (разом з фундаментом, стінами та перекриттям) повністю вилитий з моноліту, тому його можна використовувати як укриття. Експлуатований дах четвертого поверху є панорамною терасою з видом на Лаврську дзвіницю та монумент «Батьківщина-Мати»; його також можна використовувати як криту засклену лаундж-зону. Конструкція потенційно розрахована на 2 мансардні поверхи (за необхідності).

Схожі пропозиції