Объект сервиса пер. Мичурина 7, 543м2

  • Печерский район пер. Болсуновский 7
  • Код: SC-209-049
  • Добавлено: 25.02.2026
  • Добавить в избранное
Тип рынка
Вторичный рынок
Улица
пер. Болсуновский 7
Призначення
Сервисный объект
Этаж
1 Этаж
Этажность
4 этажный дом
Общая площадь
543 м2
Общее состояние
Без ремонта
Цена:
55 869 617 грн.
1 290 000 USD
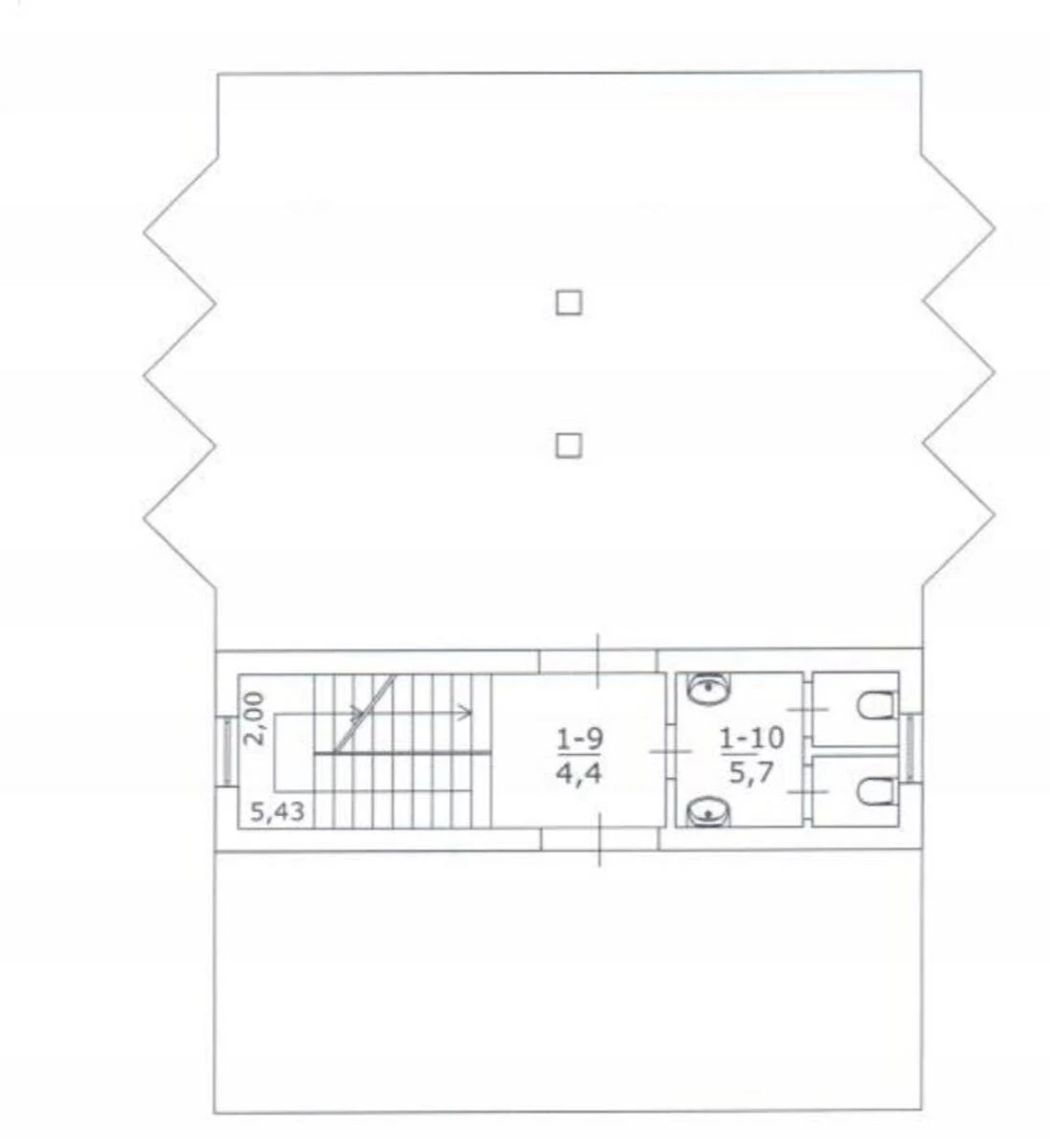
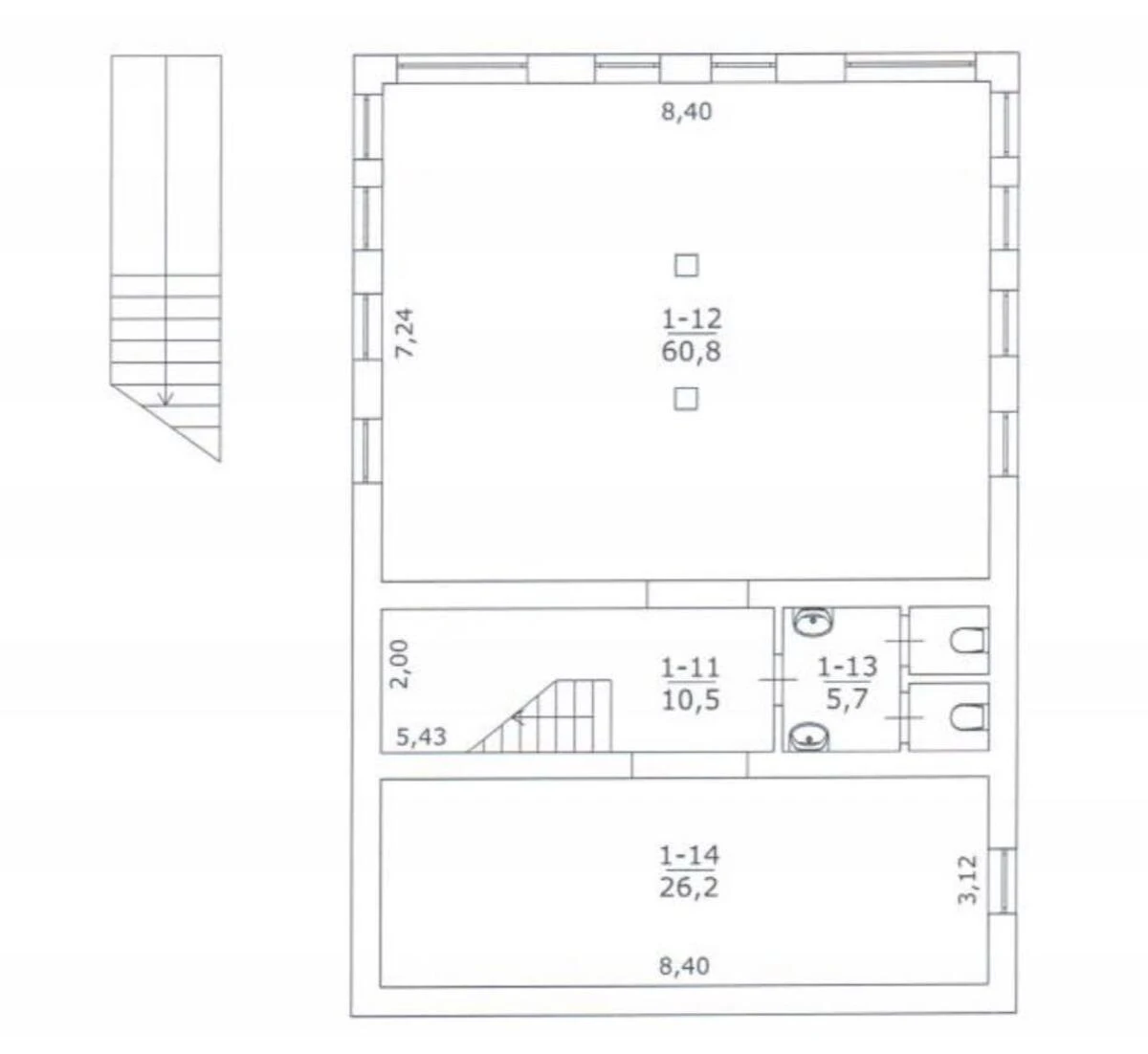
Описание объекта

Помещение свободного назначения. Фактическая площадь здания 543 м2. Высота потолка - 320см. Панорамные окна Rehau. Собственная парковка на 6 авто с возможностью расширения. Цокольный этаж (вместе с фундаментом, стенами и перекрытием) полностью вылит из монолита, поэтому его можно использовать как укрытие. Эксплуатируемая крыша четвертого этажа является панорамной террасой с видом на Лаврскую колокольню и монумент "Родина-Мать"; ее также можно использовать как крытую застекленную лаундж-зону. Конструкция потенциально рассчитана на 2 мансардных этажа (при необходимости).

Похожие предложения