Service object prov. Michurina 7, 543m2

  • Pecherskyi District prov. Bolsunovskyy 7
  • Code: SC-209-049
  • Added by: 25.02.2026
  • Add to favorites
Market type
Secondary market
Street
prov. Bolsunovskyy 7
Purpose
Service Object
Floor
1 Floor
Number of storeys
4 storey house
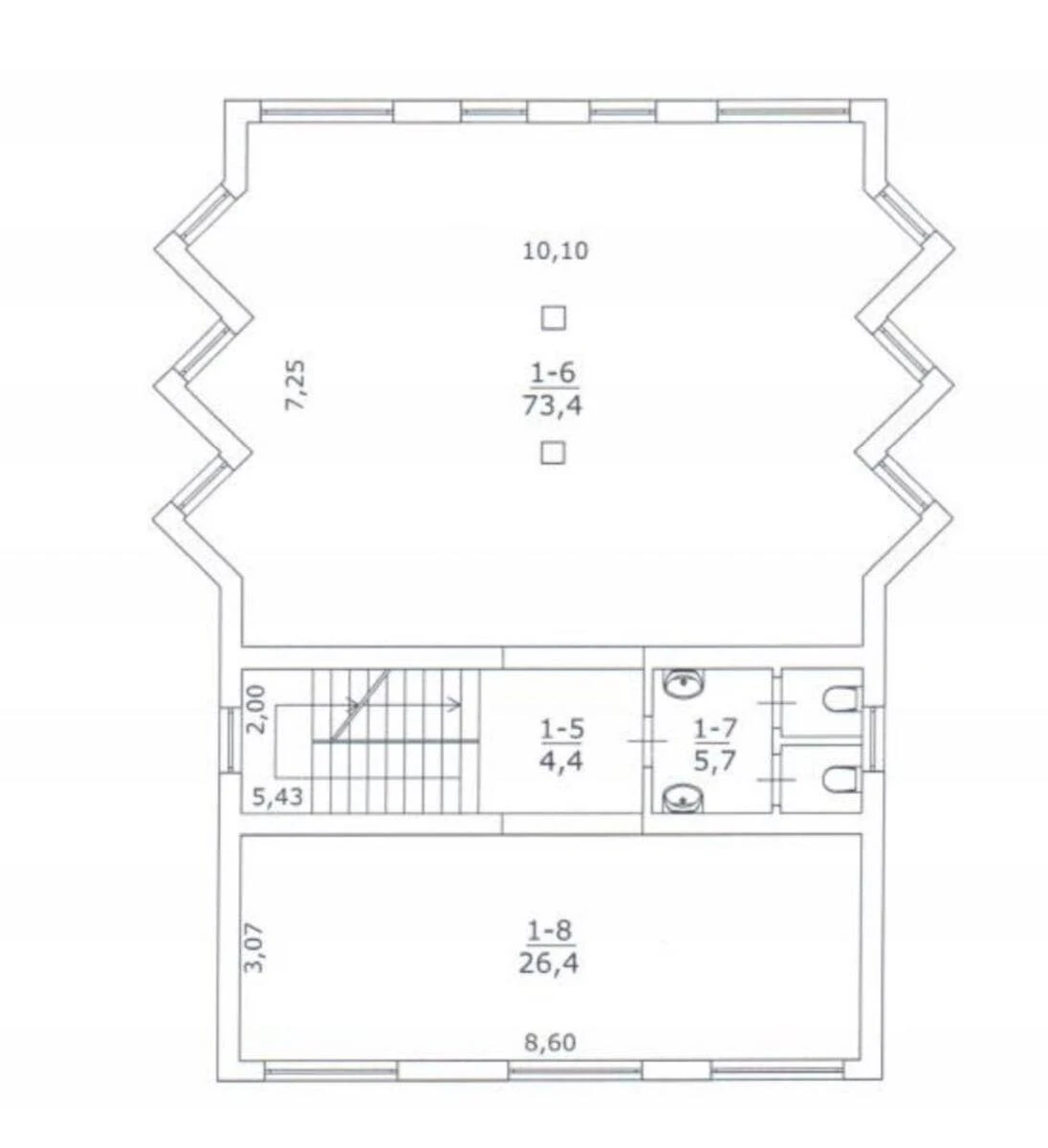
Total area
543 м2
General state
Without repair
Price:
55 869 617 UAH
1 290 000 USD
Description of the object

The premises are free for use. The actual area of the building is 543 m2. Ceiling height - 320 cm. Rehau panoramic windows. Private parking for 6 cars with the possibility of expansion. The basement (together with the foundation, walls and ceiling) is completely cast from monolith, so it can be used as a shelter. The exploited roof of the fourth floor is a panoramic terrace overlooking the Lavra Bell Tower and the Motherland monument; it can also be used as a covered glazed lounge area. The structure is potentially designed for 2 mansard floors (if necessary).

Similar offers