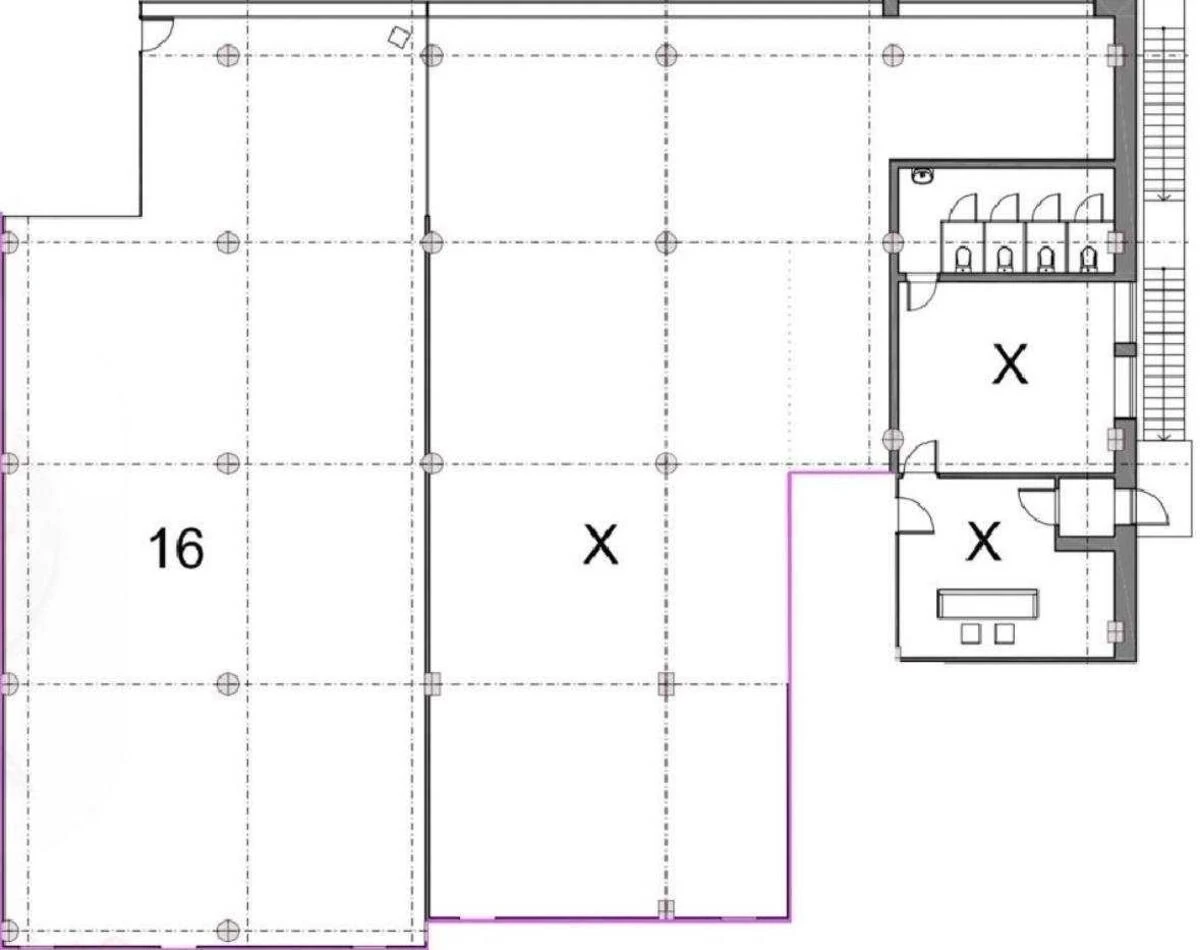
Офіс вул. Жилянська 59, 551м2

  • Голосіївський район вул. Жилянська 59
  • Код: RC-223-494
  • Добавлено: 08.04.2026
  • Додати в обране
Тип ринку
Вторинний ринок
Вулиця
вул. Жилянська 59
Назначение
Офісне приміщення
Поверх
2 Поверх
Поверховість
5 поверховий будинок
Загальна площа
551 м2
Загальний стан
З ремонтом
Ціна:
287 987 грн.
6 600 USD
Опис об'єкту

ЖК Дипломат-Холл, офісне приміщення. Загальна площа 551м2. Окремий вхід з вул. Сімʼї Прахових. Зручне планування (великий open-space і окремі кабінети), зона рецепції. Автономна система опалення (інфрачервоні панелі), система кондиціонування Daikin, панорамні вікна. Офіс здається без меблів (є лише кухня). Доступна електрична потужність 200 кВт. Можливість орендувати паркомісця.

Схожі пропозиції