Оренда

Усі фото (13)
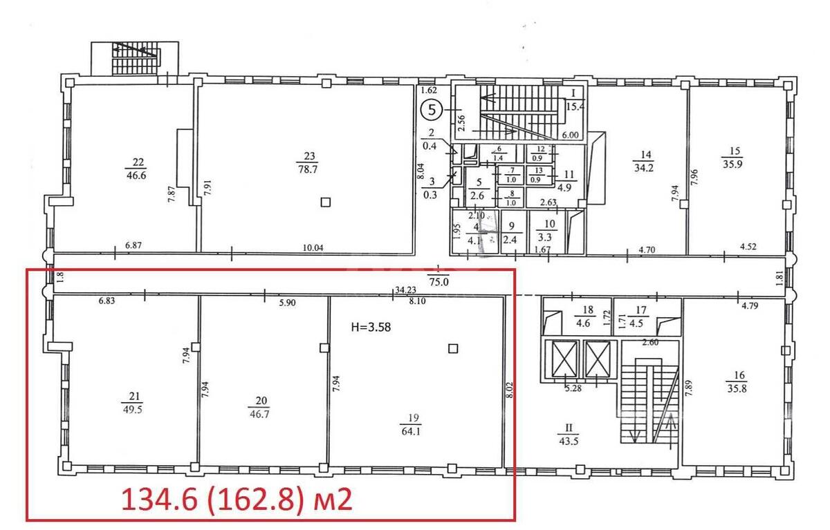
Офіс вул. Верхній Вал 4Б, 134м2
- Додати в обране
-
Подiлитись посиланням
Тип ринку
Вторинний ринок
Вулиця
вул. Верхній Вал 4Б
Назначение
Офісне приміщення
Поверх
5 Поверх
Поверховість
5 поверховий будинок
Загальна площа
134 м2
Загальний стан
З ремонтом
Ціна:
75 000 грн.
1 815 USD
Опис об'єкту
Офісне приміщення. П'ятий поверх. Охорона, всі комунікації, метро Контрактова площа – 5 хвилин. Нова презентабельна будівля. Дизель-генератор. Вартість – 460 гр/м2 з ПДВ. Додатково оплачується лише електрика та опалення.
Додаткова інформація