Rent
 
              
                 
                All photos (13)
              
              
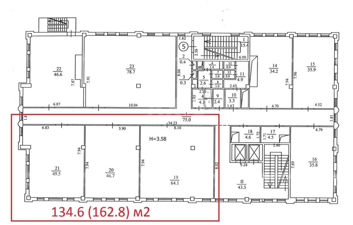
          Office vul. Verhnij Val 4Б, 134m2
- Add to favorites
- 
              Share link
Market type
                Secondary market
              Street
                
                  vul. Verhnij Val 4Б
              Purpose
                Office Premise
              Floor
                5 Floor
              Number of storeys
                5 storey house
                
              Total area
                134 м2
              General state
                With repair
              Price:
              75 000 UAH
              1 783 USD
            Description of the object
          Office space. Fifth floor. Security, all communications, Kontraktova Square metro station - 5 minutes. New presentable building. Diesel generator. The cost is 460 UAH/m2 including VAT. Only electricity and heating are paid additionally.
Additional Information
           
                   
                   
                   
                   
                   
                   
                   
                   
                   
                   
                   
                   
                           
                           
                          