Аренда

Все фото (13)
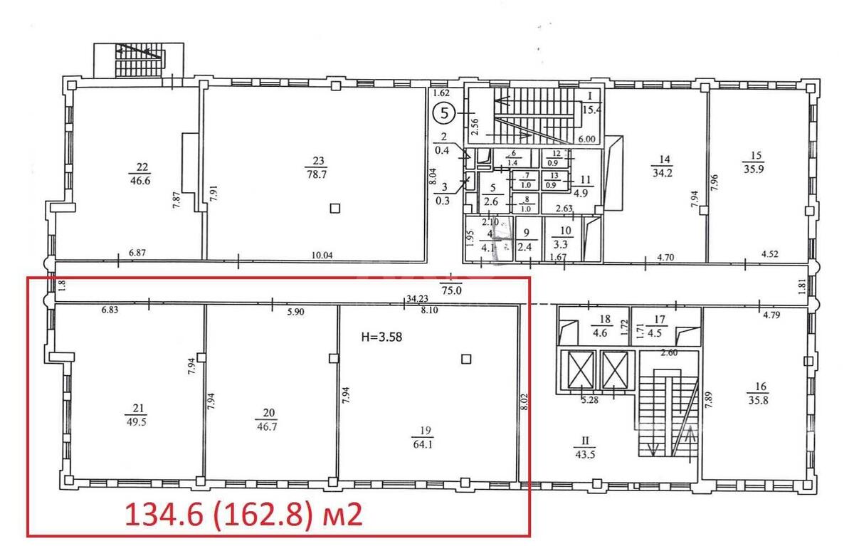
Офис ул. Верхний Вал 4Б, 134м2
- Добавить в избранное
-
Поделиться ссылкой
Тип рынка
Вторичный рынок
Улица
ул. Верхний Вал 4Б
Призначення
Офисное помещение
Этаж
5 Этаж
Этажность
5 этажный дом
Общая площадь
134 м2
Общее состояние
С ремонтом
Цена:
75 000 грн.
1 815 USD
Описание объекта
Офисное помещение. П'пятый этаж. Охрана, все коммуникации, метро Контрактовая площадь - 5 минут. Новое презентабельное здание. Дизель-генератор. Стоимость - 460 гр/м2 с НДС. Дополнительно оплачивается только электричество и отопление.
Дополнительная информация