Офіс вул. Сирецька 33, 120м2

  • Подільський район вул. Сирецька 33
  • Код: RC-217-452
  • Добавлено: 05.11.2025
  • Додати в обране
Тип ринку
Вторинний ринок
Вулиця
вул. Сирецька 33
Назначение
Офісне приміщення
Поверх
2 Поверх
Поверховість
2 поверховий будинок
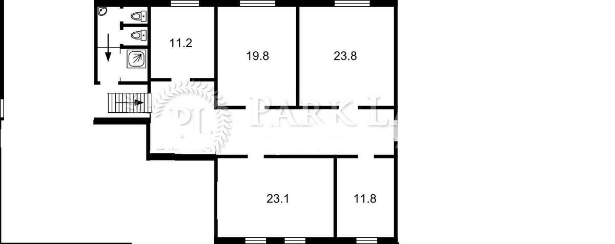
Загальна площа
120 м2
Загальний стан
З ремонтом
Ціна:
20 000 грн.
475 USD
  • AXIS Real Estate
  • AXIS Real Estate
  • AXIS Real Estate
Опис об'єкту

Офісне приміщення. Офісне приміщення на 2 поверсі з окремим входом, що розташований на закритій території з цілодобовим режимом роботи. Електрика виділена під виробництво 110 кВт (3 фази), витяжка. У приміщенні підведена вода, є санвузол та душова. Функціональне планування: рецепшн, 4 кабінети.

Додаткова інформація

Схожі пропозиції