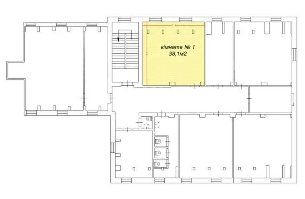
Об'єкт торгівлі вул. Межигірська 87А, 38м2

  • Подільський район вул. Межигірська 87А
  • Код: RC-218-464
  • Добавлено: 27.11.2025
  • Додати в обране
Тип ринку
Вторинний ринок
Вулиця
вул. Межигірська 87А
Назначение
Торгове приміщення
Поверх
4 Поверх
Поверховість
5 поверховий будинок
Загальна площа
38 м2
Загальний стан
З ремонтом
Ціна:
20 300 грн.
480 USD
  • AXIS Real Estate
  • AXIS Real Estate
  • AXIS Real Estate
Опис об'єкту

Приміщення вільного призначення. 4/5 поверх, нежитловий фонд. Окремий вхід, місце для реклами. Вікна, ремонт, санвузол, генератор. Можлива реєстрація юридичної адреси. Лічильники, доступ 24/7, охорона, паркінг.

Додаткова інформація

Схожі пропозиції