Офис ул. Сырецкая 33, 120м2

  • Подольский район ул. Сырецкая 33
  • Код: RC-217-452
  • Добавлено: 05.11.2025
  • Добавить в избранное
Тип рынка
Вторичный рынок
Улица
ул. Сырецкая 33
Призначення
Офисное помещение
Этаж
2 Этаж
Этажность
2 этажный дом
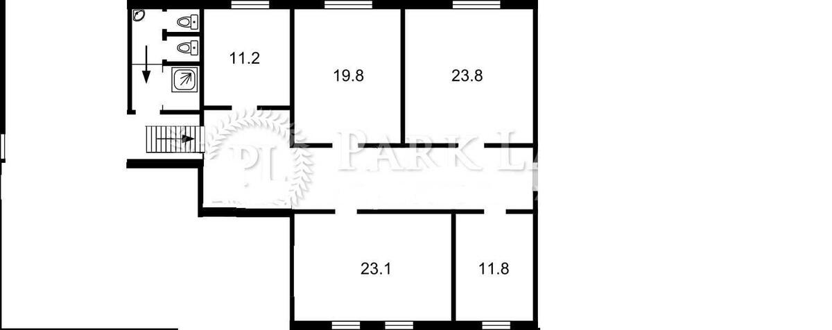
Общая площадь
120 м2
Общее состояние
С ремонтом
Цена:
20 000 грн.
475 USD
  • AXIS Real Estate
  • AXIS Real Estate
  • AXIS Real Estate
Описание объекта

Офисное помещение. Офисное помещение на 2 этаже с отдельным входом, расположенный на закрытой территории с круглосуточным режимом работы. Электричество выделено под производство 110 кВт (3 фазы), вытяжка. В помещении подведена вода, есть санузел и душевая. Функциональная планировка: рецепшн, 4 кабинета.

Дополнительная информация

Похожие предложения