Офіс вул. Спаська 5, 230м2

  • Подільський район вул. Спаська 5
  • Код: RC-213-397
  • Добавлено: 11.08.2025
  • Додати в обране
Тип ринку
Вторинний ринок
Вулиця
вул. Спаська 5
Назначение
Офісне приміщення
Поверх
2 Поверх
Поверховість
5 поверховий будинок
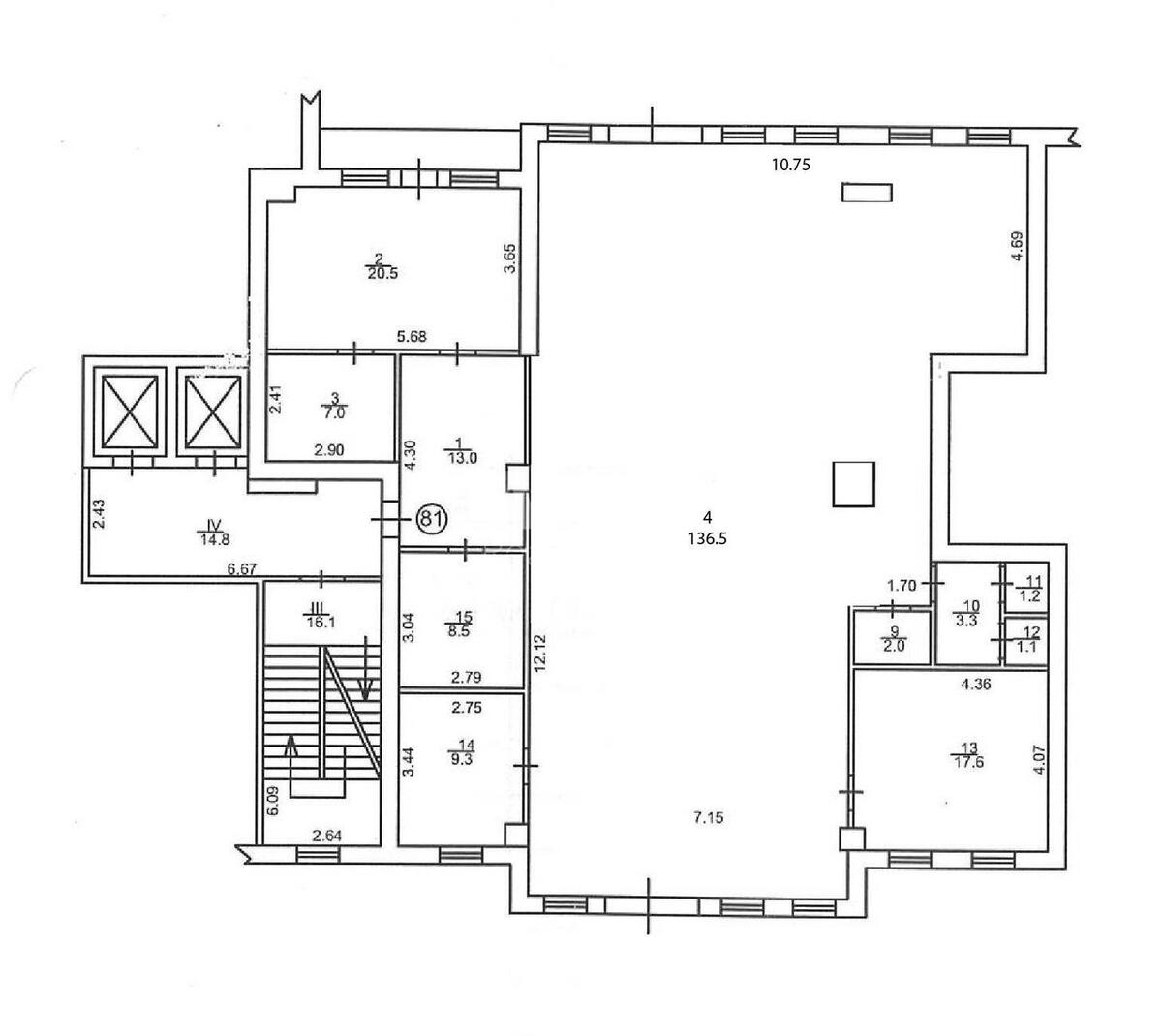
Загальна площа
230 м2
Загальний стан
З ремонтом
Ціна:
155 592 грн.
3 680 USD
  • AXIS Real Estate
  • AXIS Real Estate
  • AXIS Real Estate
Опис об'єкту

Приміщення вільного призначення. Вікна виходять на Контрактову площу, поряд вхід у метро 1хв, величезний трафік, та великі можливості для реклами 15 метрів фасаду та багато вікон. Загальна площа офісу 230 м. кв. Офіс складається з великого залу 150м2, та 3-х офісних кабінетів та санвузла. Вхід з двору або через бізнес центр. На поверсі 2 ліфти. Офіс займає половину поверху, всього на поверсі 2 офіси. В приміщенні заведені 60 кВт, є витяжка, кондиціонування, приточна вентиляція, санвузол. В приміщенні є свій балкон з видом на Контрактову площу. Раніше приміщення здавалося під ресторан, зараз відновлюється під офіс. Можливе надання ремонтних канікул.

Додаткова інформація

Схожі пропозиції