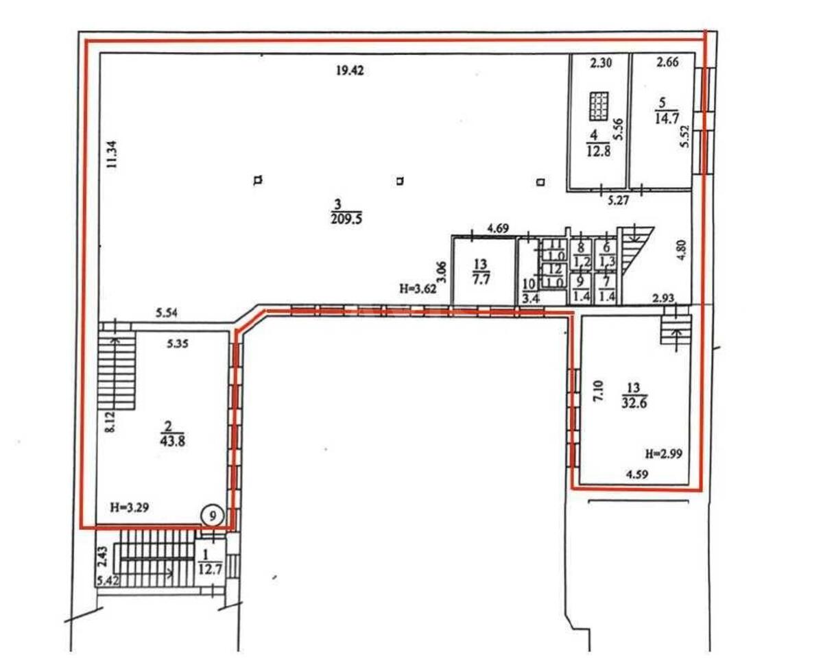
Офіс вул. Верхній Вал 22, 380м2

  • Подільський район вул. Верхній Вал 22
  • Код: RC-219-043
  • Добавлено: 09.12.2025
  • Додати в обране
Тип ринку
Вторинний ринок
Вулиця
вул. Верхній Вал 22
Назначение
Офісне приміщення
Поверх
2 Поверх
Поверховість
2 поверховий будинок
Загальна площа
380 м2
Загальний стан
З ремонтом
Ціна:
176 511 грн.
4 180 USD
Опис об'єкту

Офісне приміщення. Товсті цегляні стіни: 'царський' будинок у центрі Подолу. Є власний дворик, який замикається на ніч. Доступ - 24/7. Приміщення із сучасним ремонтом, після орендарів. Є можливість недорого придбати меблі. СКД, сигналізація, комп'ютерна мережа. Офіс оснащено системою центрального кондиціювання.

Схожі пропозиції