Оренда

Усі фото (14)
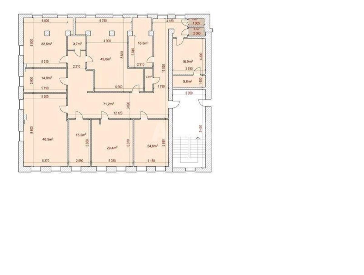
Офіс вул. Хорива 1А, 332м2
- Додати в обране
-
Подiлитись посиланням
Тип ринку
Вторинний ринок
Вулиця
вул. Хорива 1А
Назначение
Офісне приміщення
Поверх
3 Поверх
Поверховість
3 поверховий будинок
Загальна площа
332 м2
Загальний стан
З ремонтом
Ціна:
153 000 грн.
3 704 USD
Опис об'єкту
Офісне приміщення. Офіс розташований на 3-му поверсі 3-поверхового будинку. Один офіс на поверх. В офісі зроблений ремонт, є кондиціонери, вбудована кухня, два санвузли, рецепція. Офіс частково мебльований і є можливість обладнати офіс на 20 робочих місць. Дуже красивий, світлий, фасад офісу. Будівля розташована навпроти Житнього ринку, в 2 хвилинах від станції метро «Контрактова площа». Дуже розвинена інфраструктура, презентабельна вхідна група, в торгово-офісному центрі є нічна охорона, відеоспостереження, а також відділення Приват Банку, ресторан, салон краси.
Додаткова інформація