Продаж

Усі фото (7)
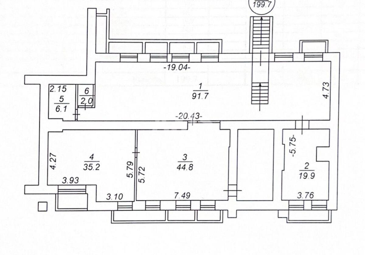
Офіс вул. Скоропадського Павла 15, 199м2
- Додати в обране
-
Подiлитись посиланням
Тип ринку
Вторинний ринок
Вулиця
вул. Скоропадського Павла 15
Назначение
Офісне приміщення
Поверх
0 Поверх
Поверховість
4 поверховий будинок
Загальна площа
199 м2
Загальний стан
Без ремонту
Ціна:
4 213 182 грн.
102 000 USD
Опис об'єкту
Офісне приміщення. Розташовано на цокольному поверсі 4пов.будинку. Без ремонту, приміщення потребує капітального ремонту. Закритий двір, шлагбаум - охорона, паркомісця. Приміщення підходить для будь якого виду діяльності. Додатково можна облагородити прибудинкову територію під вашу діяльність.
Додаткова інформація