Sell

All photos (7)
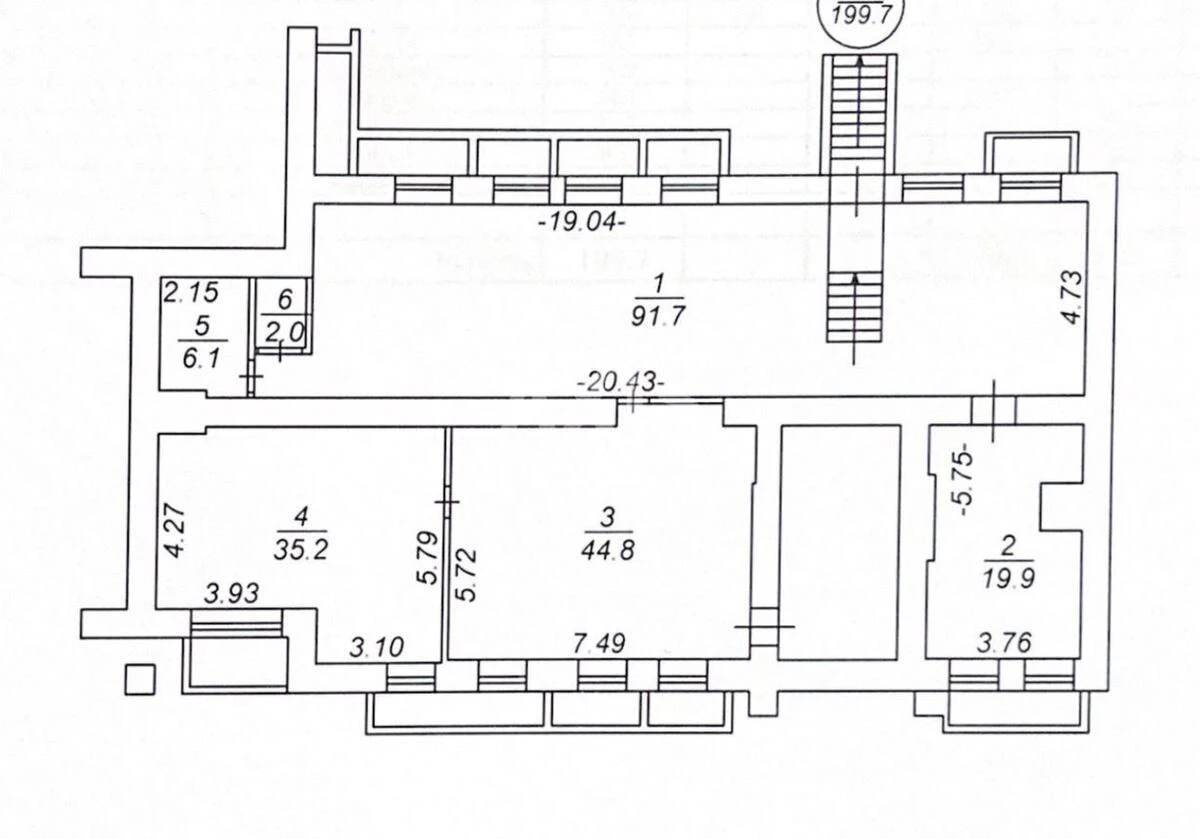
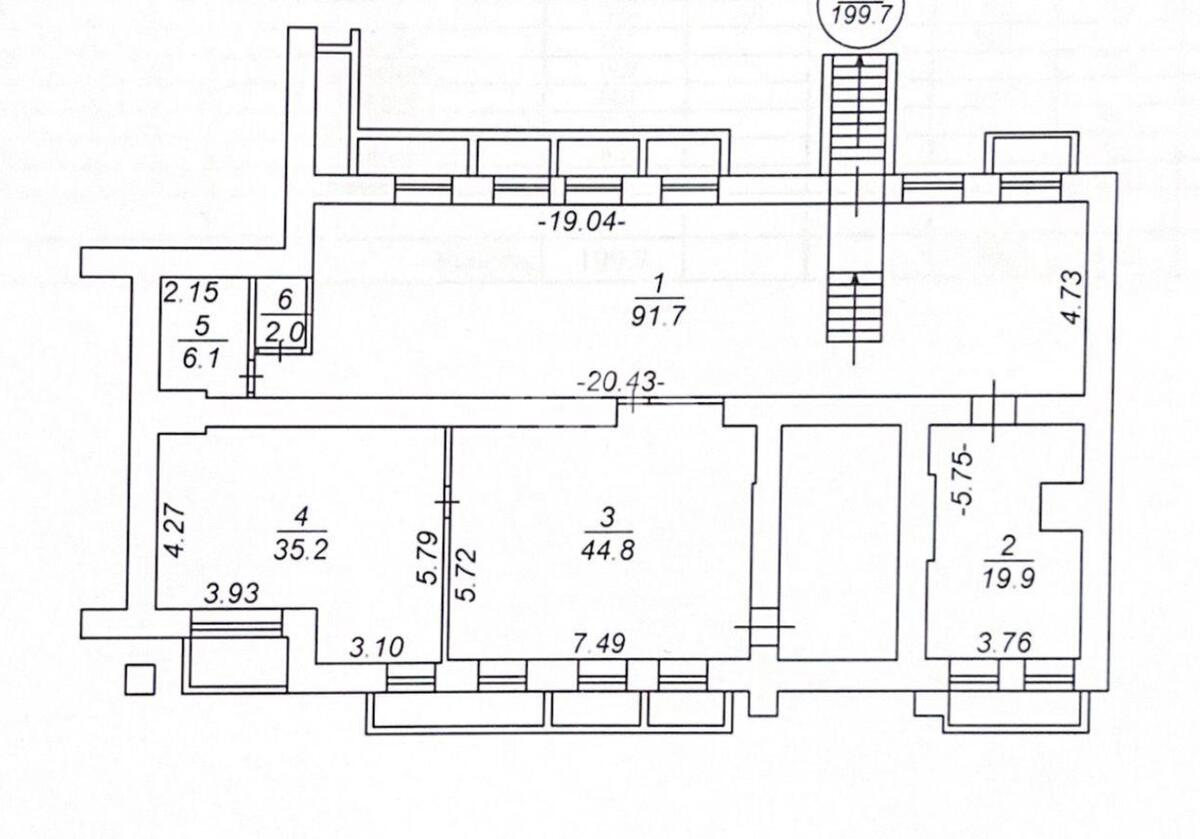
Office vul. Skoropads'kogo Pavla 15, 199m2
- Add to favorites
-
Share link
Market type
Secondary market
Street
vul. Skoropads'kogo Pavla 15
Purpose
Office Premise
Floor
0 Floor
Number of storeys
4 storey house
Total area
199 м2
General state
Without repair
Price:
4 213 182 UAH
102 000 USD
Description of the object
Office space. Located on the ground floor of the 4th floor of the building. Without repair, the premises need major repairs. Closed yard, barrier - security, parking spaces. The room is suitable for any type of activity. Additionally, you can improve the adjacent territory for your activities.
Additional Information