Офіс вул. Саксаганського 33/35, 80м2

  • Голосіївський район вул. Саксаганського 33/35
  • Код: RC-222-689
  • Добавлено: 18.03.2026
  • Додати в обране
Тип ринку
Вторинний ринок
Вулиця
вул. Саксаганського 33/35
Назначение
Офісне приміщення
Поверх
2 Поверх
Поверховість
5 поверховий будинок
Загальна площа
80 м2
Загальний стан
З ремонтом
Ціна:
127 822 грн.
2 900 USD
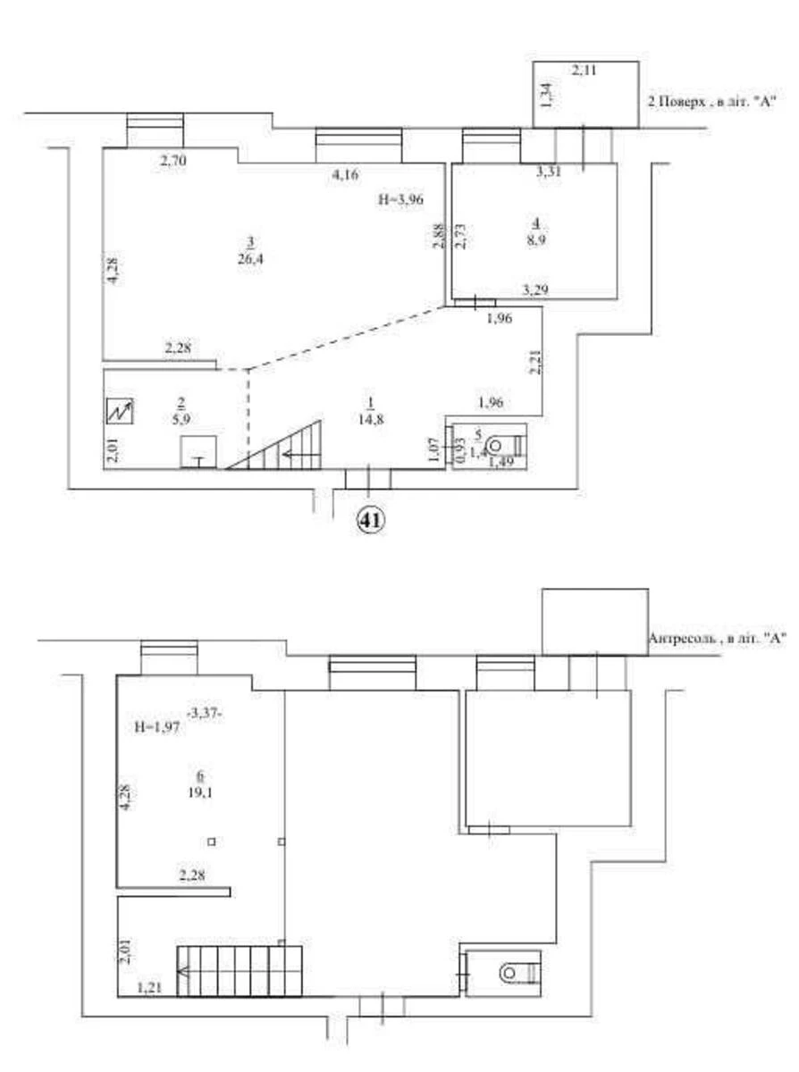
Опис об'єкту

Офісне приміщення. Основна робоча зона на 8 людей (open-space). Кабінет директора на 2 особи. Лаунж-зона на другому рівні (антресоль) — для відпочинку, неформальних зустрічей або фокусної роботи. Офіс розрахований на 10 робочих місць. Простір повністю готовий до роботи та щоденного використання.

Схожі пропозиції