Office vul. Saksagans'kogo 33/35, 80m2

  • Holosiivskyi District vul. Saksagans'kogo 33/35
  • Code: RC-222-689
  • Added by: 18.03.2026
  • Add to favorites
Market type
Secondary market
Street
vul. Saksagans'kogo 33/35
Purpose
Office Premise
Floor
2 Floor
Number of storeys
5 storey house
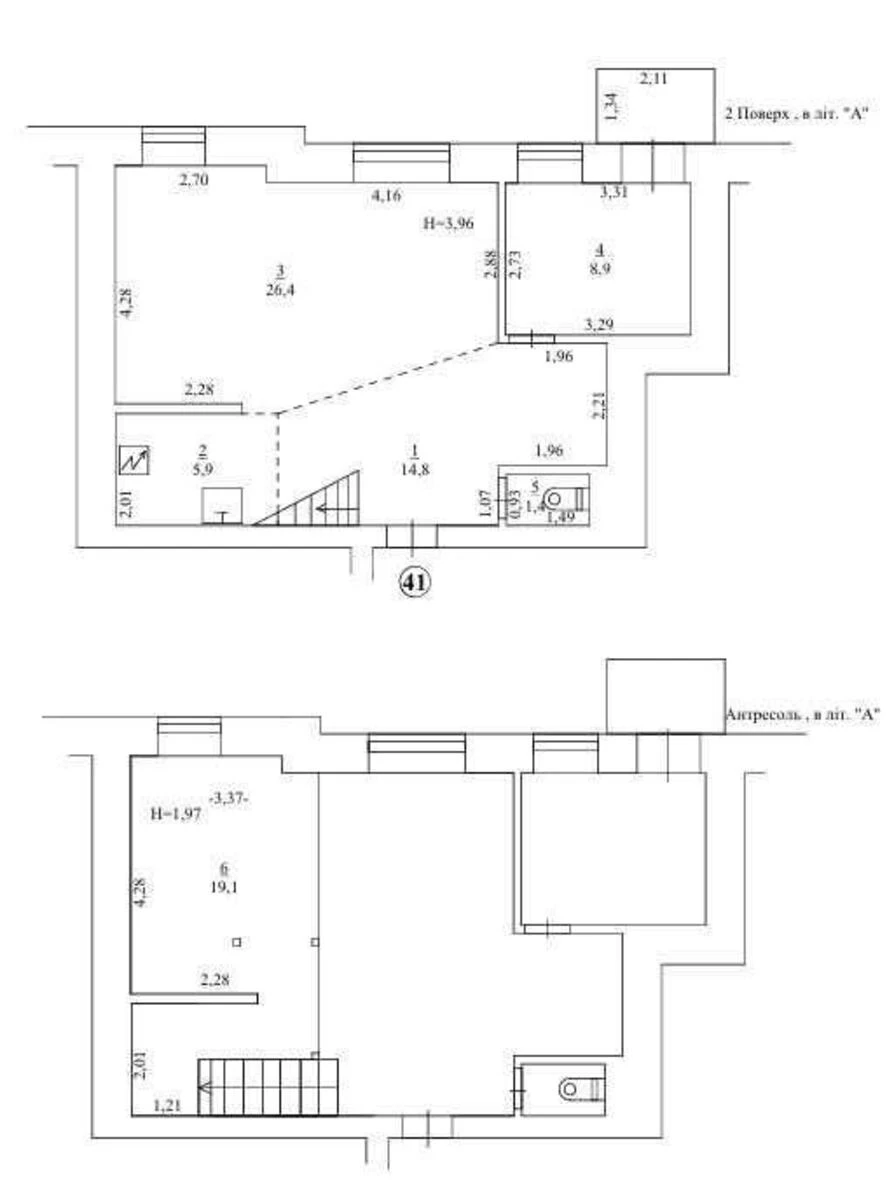
Total area
80 м2
General state
With repair
Price:
127 822 UAH
2 900 USD
Description of the object

Office space. Main workspace for 8 people (open-plan). A director’s office for 2 people. A lounge area on the second level (mezzanine) — for relaxation, informal meetings or focused work. The office is designed for 10 workstations. The space is fully ready for work and daily use.

Similar offers