Офіс вул. Володимирська 38, 320м2

  • Шевченківський район вул. Володимирська 38
  • Код: RC-222-701
  • Добавлено: 18.03.2026
  • Додати в обране
Тип ринку
Вторинний ринок
Вулиця
вул. Володимирська 38
Назначение
Офісне приміщення
Поверх
1 Поверх
Поверховість
5 поверховий будинок
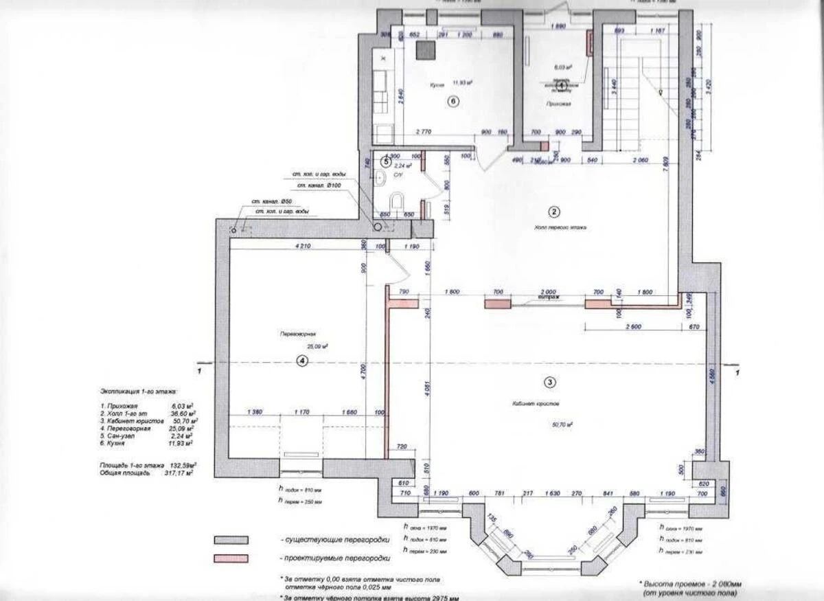
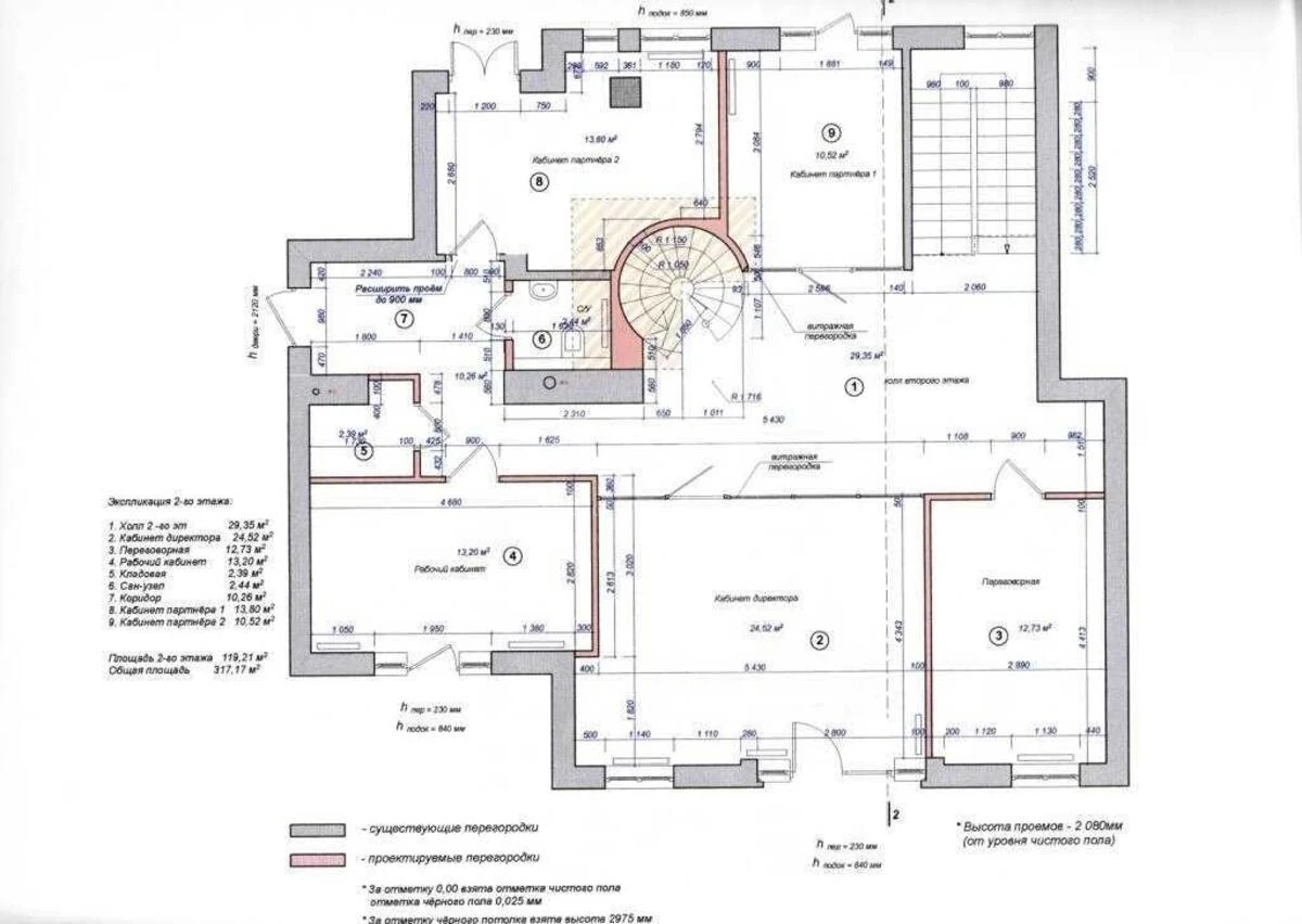
Загальна площа
320 м2
Загальний стан
З ремонтом
Ціна:
207 159 грн.
4 700 USD
Опис об'єкту

Офісне приміщення. Стан – з ремонтом. Планування: кабінетна система, кухня, с/в. Офіс оснащено системою кондиціювання, пропускною системою. Інфраструктура: навчальні заклади, супермаркет, ТРЦ, парк, зелена зона, стоянка, парковка, гараж, відділення пошти, ресторан, кафе, бар, транспортна розв'язка, відділення банку, банкомат, центр міста, аптека, шосе, траса, лікарня, поліклініка, метро, офіси, бізнес центр.

Схожі пропозиції