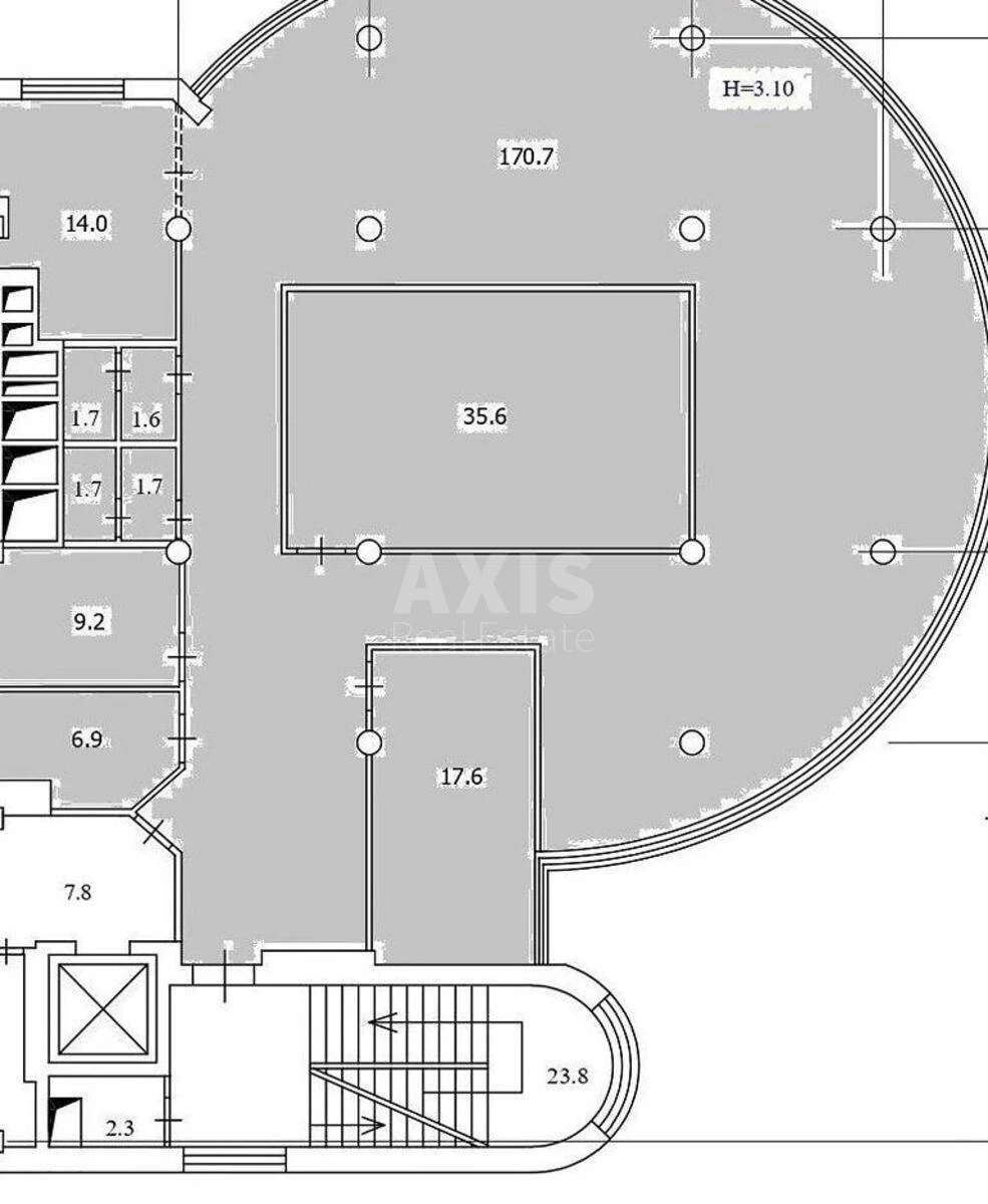
Офіс вул. Польова 24Д, 293м2

  • Солом'янський район вул. Польова 24Д
  • Код: RC-221-572
  • Добавлено: 23.02.2026
  • Додати в обране
Тип ринку
Вторинний ринок
Вулиця
вул. Польова 24Д
Назначение
Офісне приміщення
Поверх
7 Поверх
Поверховість
8 поверховий будинок
Загальна площа
293 м2
Загальний стан
З ремонтом
Ціна:
215 697 грн.
4 981 USD
Опис об'єкту

Офісне приміщення. Офіс з якісним ремонтом готовий до роботи. 4 кабінети + Open Space для комфортної роботи команди. Власна кухня (14 м²) та 2 санвузли. Просторий хол-приймальний, зручний для ресепшн. Власна серверна кімната. Система кондиціювання та висота стелі 3 м. Два введення електрики + незалежне (500 кВт).

Схожі пропозиції