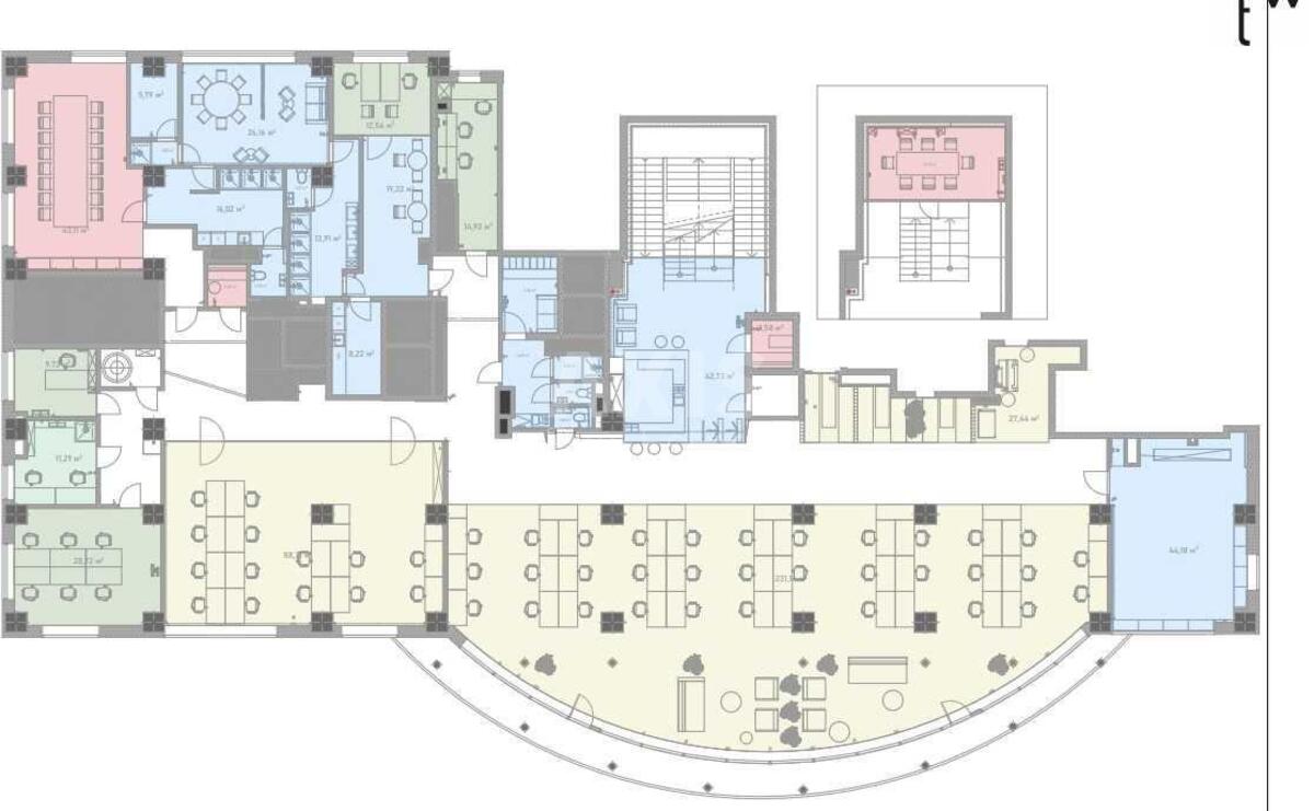
Офіс вул. Оболонська набережна 1, 1000м2

  • Оболонський район вул. Оболонська набережна 1
  • Код: SC-217-062
  • Добавлено: 27.10.2025
  • Додати в обране
Тип ринку
Вторинний ринок
Вулиця
вул. Оболонська набережна 1
Назначение
Офісне приміщення
Поверх
1 Поверх
Поверховість
25 поверховий будинок
Загальна площа
1000 м2
Загальний стан
З ремонтом
Ціна:
103 588 432 грн.
2 450 000 USD
  • AXIS Real Estate
  • AXIS Real Estate
  • AXIS Real Estate
Опис об'єкту

ЖК Парус, офісне приміщення. Складається із 2х поверхів. Складається з 2-х поверхів, перший - зона приймальні, кафе, з/в, зберігання. другий – робочий зал, окремі кабінети, наявність хамама, міні-спорт зали. Виконаний дорогий ремонт, центральна система кондиціювання по всьому приміщенню, висота стелі – 4 метри, панорамний вид на Дніпро. Доступ 24/7. Є 9 виділених паркомісць.

Додаткова інформація