Офис ул. Оболонская набережная 1, 1000м2

  • Оболонский район ул. Оболонская набережная 1
  • Код: SC-217-062
  • Добавлено: 27.10.2025
  • Добавить в избранное
Тип рынка
Вторичный рынок
Улица
ул. Оболонская набережная 1
Призначення
Офисное помещение
Этаж
1 Этаж
Этажность
25 этажный дом
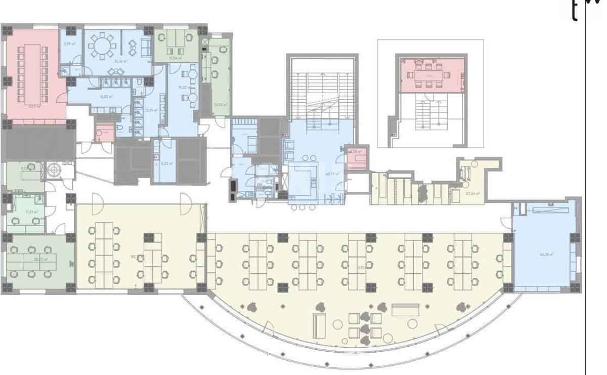
Общая площадь
1000 м2
Общее состояние
С ремонтом
Цена:
103 588 432 грн.
2 450 000 USD
  • AXIS Real Estate
  • AXIS Real Estate
  • AXIS Real Estate
Описание объекта

ЖК Парус, офисное помещение. Состоит из 2х этажей. Состоит из 2-х этажей, первый - зона приемной, кафе, с/у, хранение. второй - рабочий зал, отдельные кабинеты, наличие хамама, мини-спорт зала. Выполнен дорогой ремонт, центральная система кондиционирования по всему помещению, высота потолков - 4 метра, панорамный вид на Днепр. Доступ 24/7. Есть 9 выделенных паркомест.

Дополнительная информация