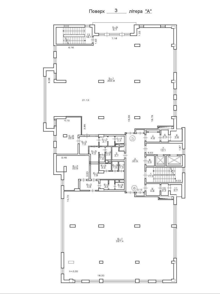
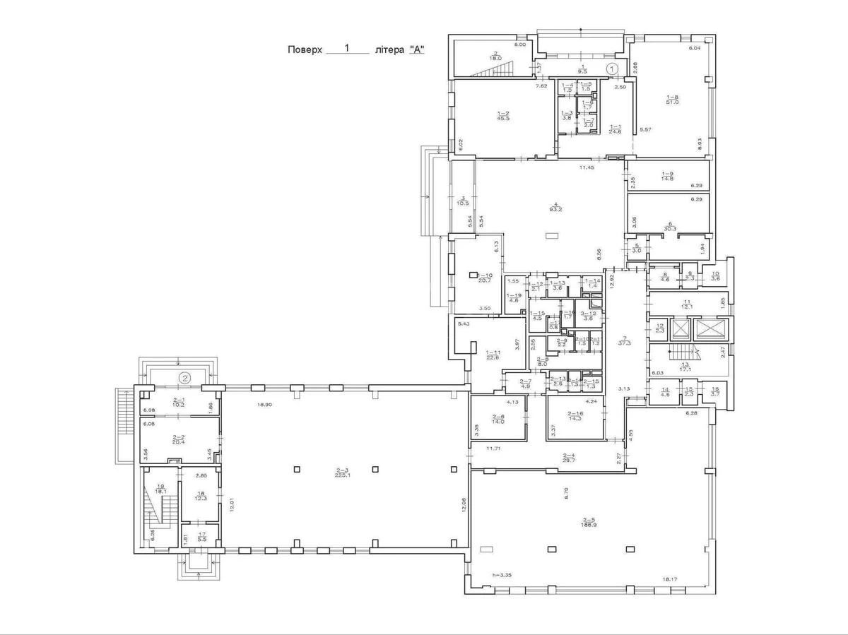
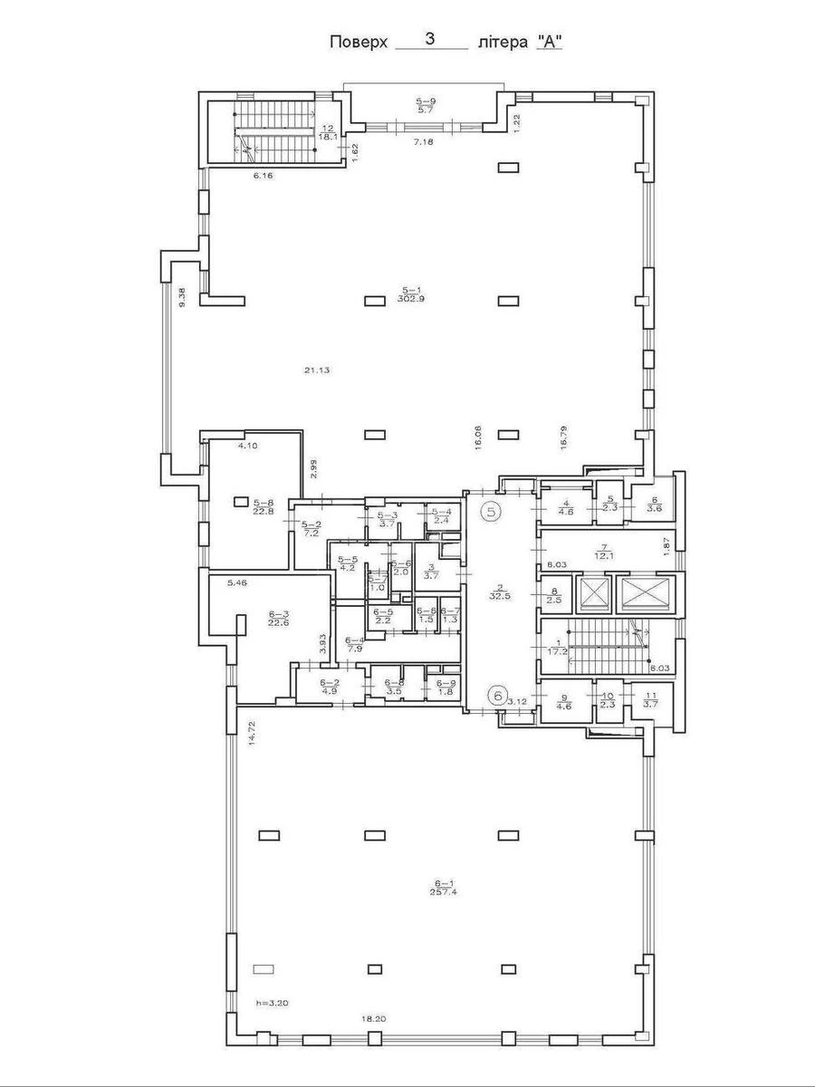
Офіс вул. Лугова 9С, 6084м2

  • Оболонський район вул. Лугова 9С
  • Код: SC-217-600
  • Добавлено: 07.11.2025
  • Додати в обране
Тип ринку
Вторинний ринок
Вулиця
вул. Лугова 9С
Назначение
Офісне приміщення
Поверх
1 Поверх
Поверховість
7 поверховий будинок
Загальна площа
6084 м2
Загальний стан
Без ремонту
Ціна:
203 968 947 грн.
4 850 000 USD
  • AXIS Real Estate
  • AXIS Real Estate
  • AXIS Real Estate
Опис об'єкту

Приміщення вільного призначення. Паркінг: гостьовий. Стан: без ремонту, вільне планування. Рік побудови: 2024. Фасад: вентильований Висота приміщень 3,5 м. Електропостачання 342 кВт на будівлю. Централізоване водопостачання і каналізація. Власна газова котельня.

Додаткова інформація