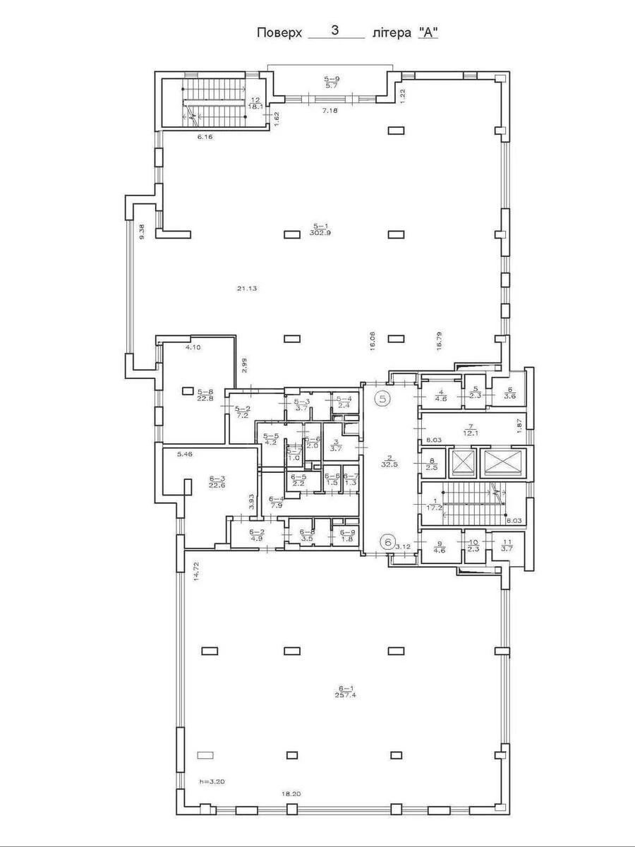
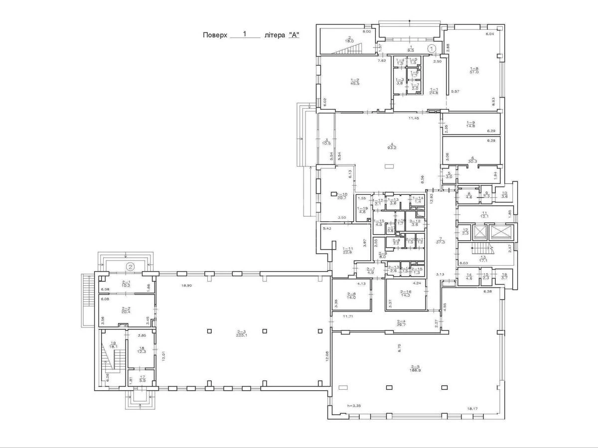
Office vul. Lugova 9С, 6084m2

  • Obolonskyi District vul. Lugova 9С
  • Code: SC-217-600
  • Added by: 07.11.2025
  • Add to favorites
Market type
Secondary market
Street
vul. Lugova 9С
Purpose
Office Premise
Floor
1 Floor
Number of storeys
7 storey house
Total area
6084 м2
General state
Without repair
Price:
203 968 947 UAH
4 850 000 USD
  • AXIS Real Estate
  • AXIS Real Estate
  • AXIS Real Estate
Description of the object

Premises for free use. Parking: guest parking. Condition: without repair, free planning. Year of construction: 2024. Facade: ventilated The height of the premises is 3.5 m. Electricity supply 342 kW per building. Centralized water supply and sewerage. Own gas boiler room.

Additional Information