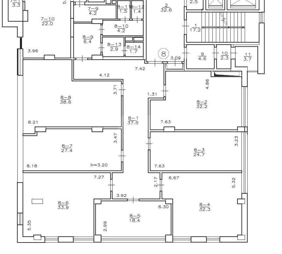
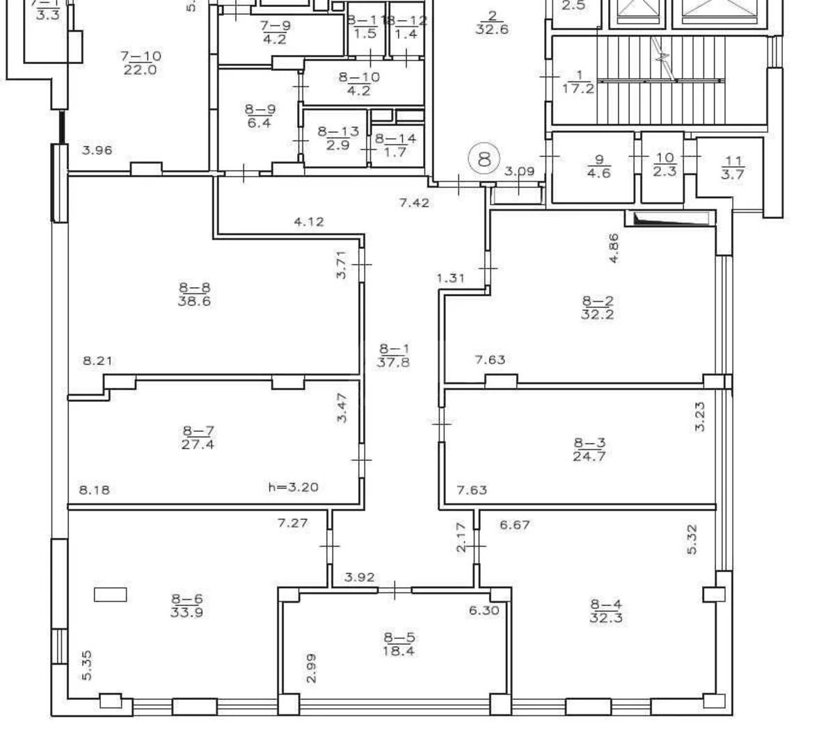
Офіс вул. Лугова 9С, 261м2

  • Оболонський район вул. Лугова 9С
  • Код: SC-217-598
  • Добавлено: 07.11.2025
  • Додати в обране
Тип ринку
Вторинний ринок
Вулиця
вул. Лугова 9С
Назначение
Офісне приміщення
Поверх
4 Поверх
Поверховість
7 поверховий будинок
Загальна площа
261 м2
Загальний стан
Без ремонту
Ціна:
10 976 473 грн.
261 000 USD
  • AXIS Real Estate
  • AXIS Real Estate
  • AXIS Real Estate
Опис об'єкту

Приміщення вільного призначення. Поверх: 4-й (в 7-поверховій окремій офісній будівлі). Стан: без ремонту. Висота приміщень: 3,5 м. Інфраструктура: відділення банку, банкомат, аптека, офіси, бізнес центр, стоянка, парковка, гараж, відділення пошти, ресторан, кафе, бар, супермаркет, ТРЦ.

Додаткова інформація