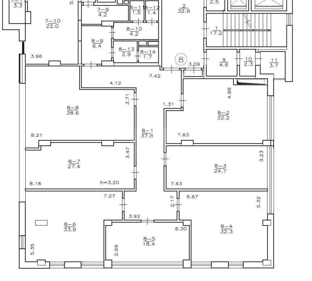
Office vul. Lugova 9С, 261m2

  • Obolonskyi District vul. Lugova 9С
  • Code: SC-217-598
  • Added by: 07.11.2025
  • Add to favorites
Market type
Secondary market
Street
vul. Lugova 9С
Purpose
Office Premise
Floor
4 Floor
Number of storeys
7 storey house
Total area
261 м2
General state
Without repair
Price:
10 976 473 UAH
261 000 USD
  • AXIS Real Estate
  • AXIS Real Estate
  • AXIS Real Estate
Description of the object

Premises for free use. Floor: 4th (in a 7-storey separate office building). Condition: without repair. Height of the premises: 3,5 м. Infrastructure: bank branch, ATM, pharmacy, offices, business center, parking, parking, garage, post office, restaurant, cafe, bar, supermarket, shopping and entertainment center.

Additional Information