Офіс вул. Євгена Чикаленка 20, 137м2

  • Шевченківський район вул. Євгена Чикаленка 20
  • Код: RC-219-774
  • Добавлено: 30.12.2025
  • Додати в обране
Тип ринку
Вторинний ринок
Вулиця
вул. Євгена Чикаленка 20
Назначение
Офісне приміщення
Поверх
2 Поверх
Поверховість
5 поверховий будинок
Загальна площа
137 м2
Загальний стан
З ремонтом
Ціна:
253 366 грн.
6 000 USD
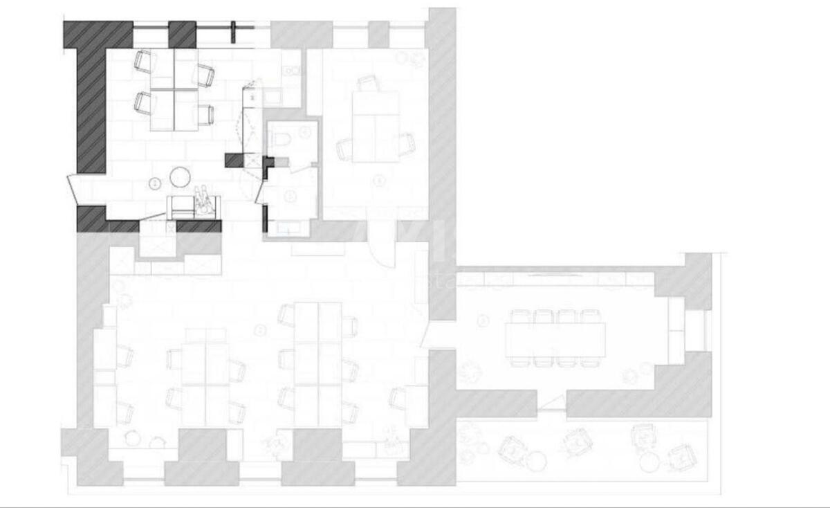
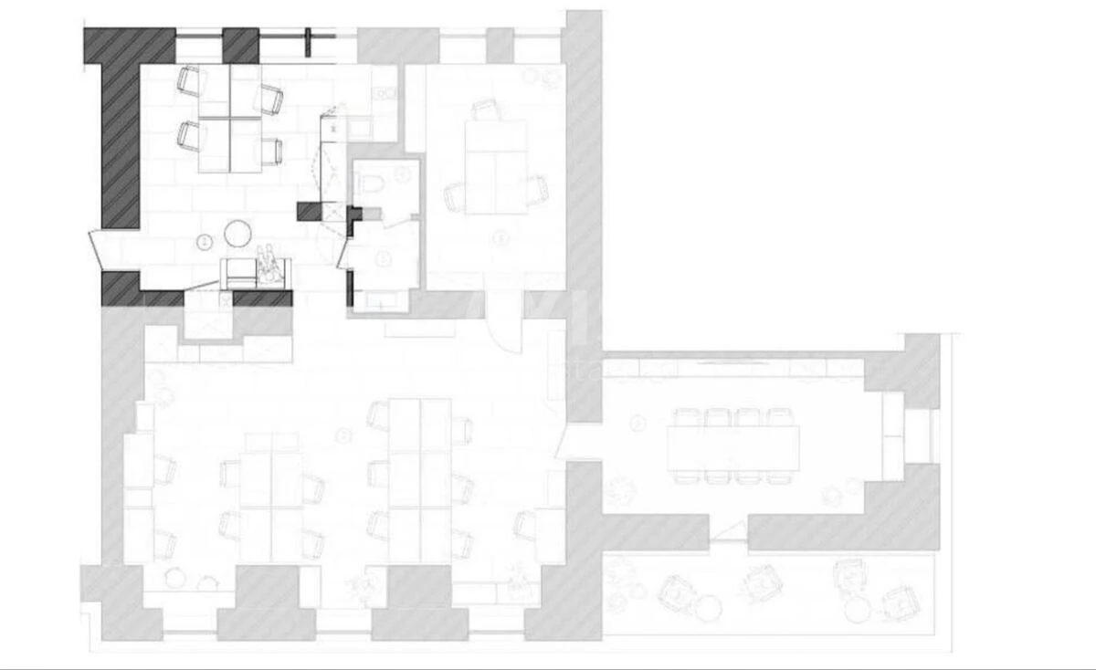
Опис об'єкту

Офісне приміщення. Планування: Просторий open space на фасад. Переговорна з виходом на власну терасу. Окремий кабінет. Кухня. Ідеально для IT, консалтингу, фінансів, маркетингу, юридичного бізнесу.

Схожі пропозиції