Office vul. Evgena Chykalenko 20, 137m2

  • Shevchenkivskyi District vul. Evgena Chykalenko 20
  • Code: RC-219-774
  • Added by: 31.01.2026
  • Add to favorites
Market type
Secondary market
Street
vul. Evgena Chykalenko 20
Purpose
Office Premise
Floor
2 Floor
Number of storeys
5 storey house
Total area
137 м2
General state
With repair
Price:
256 930 UAH
6 000 USD
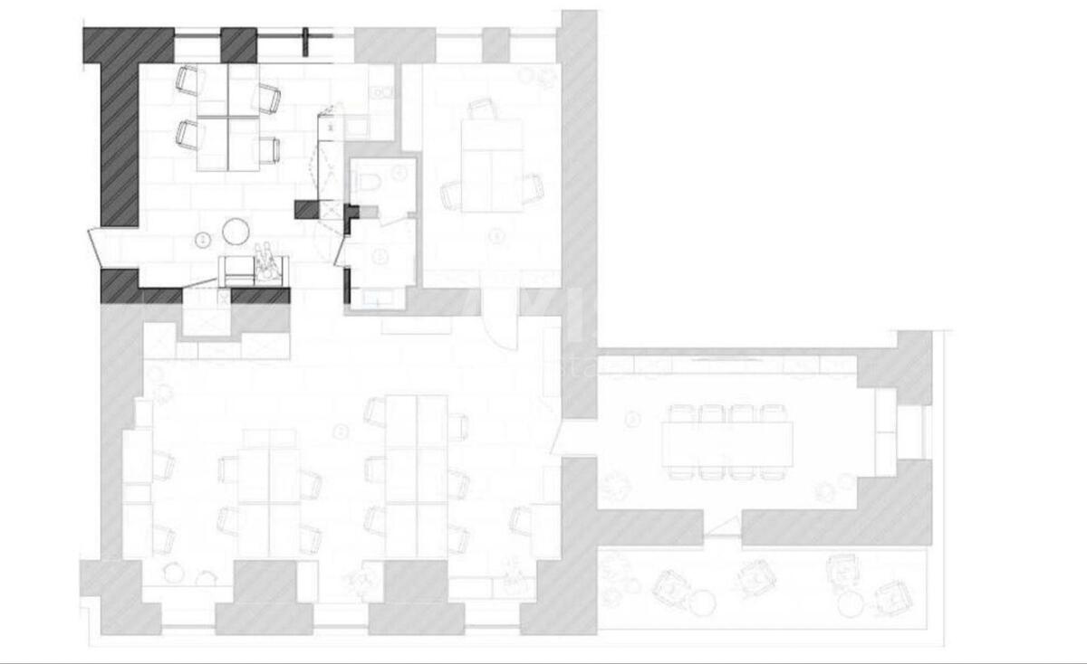
Description of the object

Office space. Layout: Spacious open space on the facade. Meeting room with access to a private terrace. Separate office. Kitchen. Ideal for IT, consulting, finance, marketing, legal business.

Similar offers