Офис ул. Евгения Чикаленко 20, 137м2

  • Шевченковский район ул. Евгения Чикаленко 20
  • Код: RC-219-774
  • Добавлено: 31.01.2026
  • Добавить в избранное
Тип рынка
Вторичный рынок
Улица
ул. Евгения Чикаленко 20
Призначення
Офисное помещение
Этаж
2 Этаж
Этажность
5 этажный дом
Общая площадь
137 м2
Общее состояние
С ремонтом
Цена:
256 930 грн.
6 000 USD
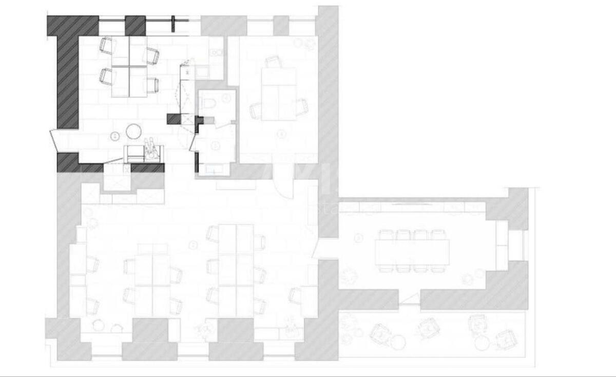
Описание объекта

Офисное помещение. Планировка: Просторный open space на фасад. Переговорная с выходом на собственную террасу. Отдельный кабинет. Кухня. Идеально для IT, консалтинга, финансов, маркетинга, юридического бизнеса.

Похожие предложения