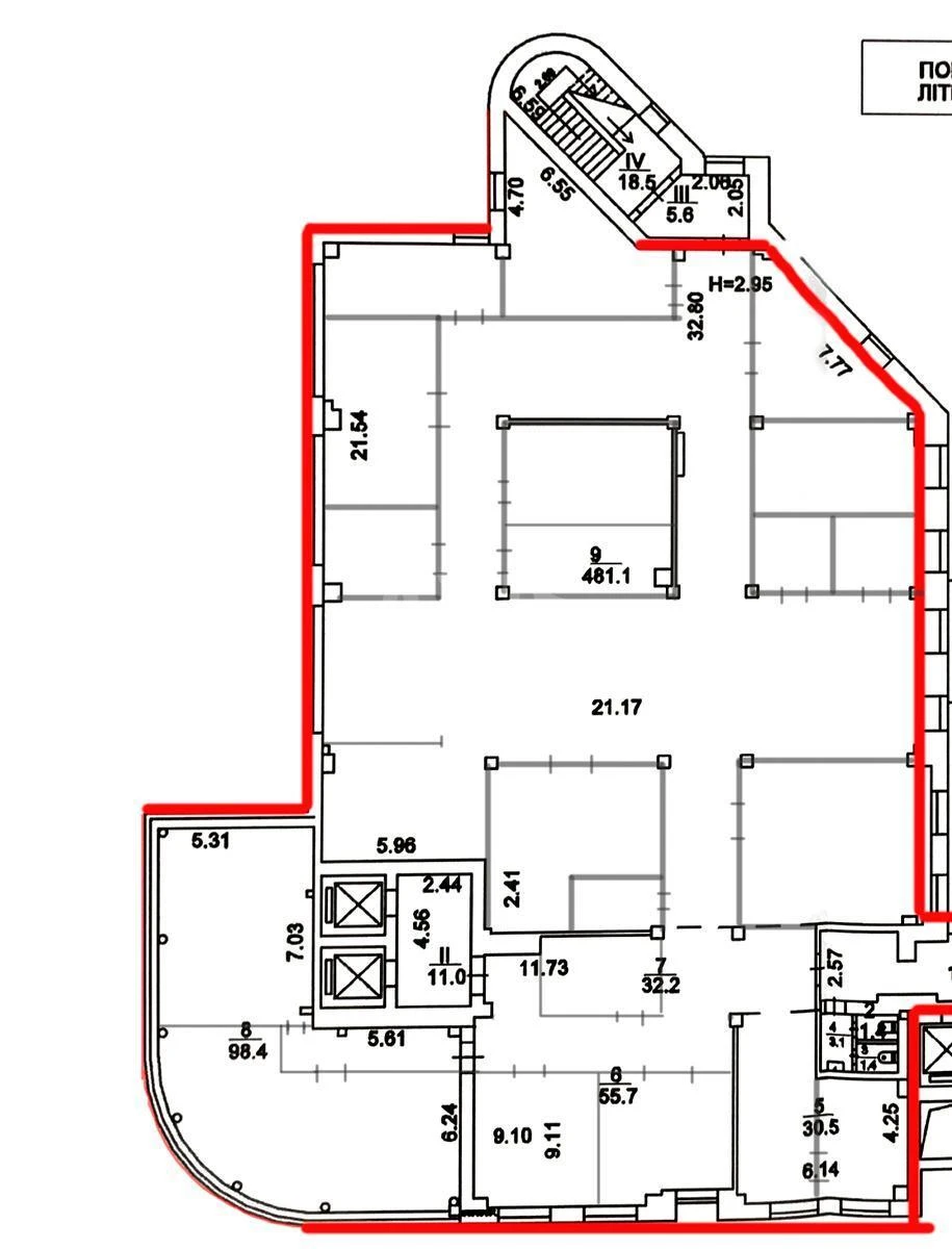
Офіс вул. Дегтярівська 27Т, 700м2

  • Шевченківський район вул. Дегтярівська 27Т
  • Код: RC-222-829
  • Добавлено: 22.03.2026
  • Додати в обране
Тип ринку
Вторинний ринок
Вулиця
вул. Дегтярівська 27Т
Назначение
Офісне приміщення
Поверх
4 Поверх
Поверховість
11 поверховий будинок
Загальна площа
700 м2
Загальний стан
З ремонтом
Ціна:
329 201 грн.
7 500 USD
Опис об'єкту

Офісне приміщення. Світло не вимикається, наявне 24-7. В приміщенні власна кухня, санвузли, кабінетна стистема поєднана з 2-ма open space. 4 поверх - 700 кв.м. корисної площі У числі орендарів БЦ Mikom Palace провідні українські та міжнародні компанії фармацевтичної, фінансової, інвестиційної та інших галузей діяльності. Бізнес-центр відрізняється фасадним розташуванням, презентабельною вхідною групою, з двома входами в будівлю, наявністю великого паркінгу. Найближчі ст.м. Лук'янівська, Дорогожичі і ст.м. Шулявська розташовані в пішохідній доступності до бізнес-центру.

Схожі пропозиції